新中式的别墅最适合南方建造,北方的别墅为了兼具保暖建出的新中式别墅并不怎么好看,效果最好的还是在南方地区建造的。今天给大家推荐的是浙江明总私人订制的三层="://www.lemeizhai.com/search.asp?SearchType=Software&imageField.x=48&imageField.y=26&SearchKey=%D6%D0%CA%BD%B1%F0%CA%FB%C9%E8%BC%C6" target="_self">新中式别墅设计,这款别墅采用了大量的现代化设计采光效果非常好,房间多功能多,茶室还有健身房和储藏室非常实用,非常好,建别墅就选它。
效果图:

别墅层数: 三层
别墅风格: 现代
占地面积:137㎡
开 间:13m
进 深:10.6m
建筑占地:13m×10.6m
建筑面积:348㎡
主体造价:50.6~55.6万
建筑结构:框架结构
效果图:



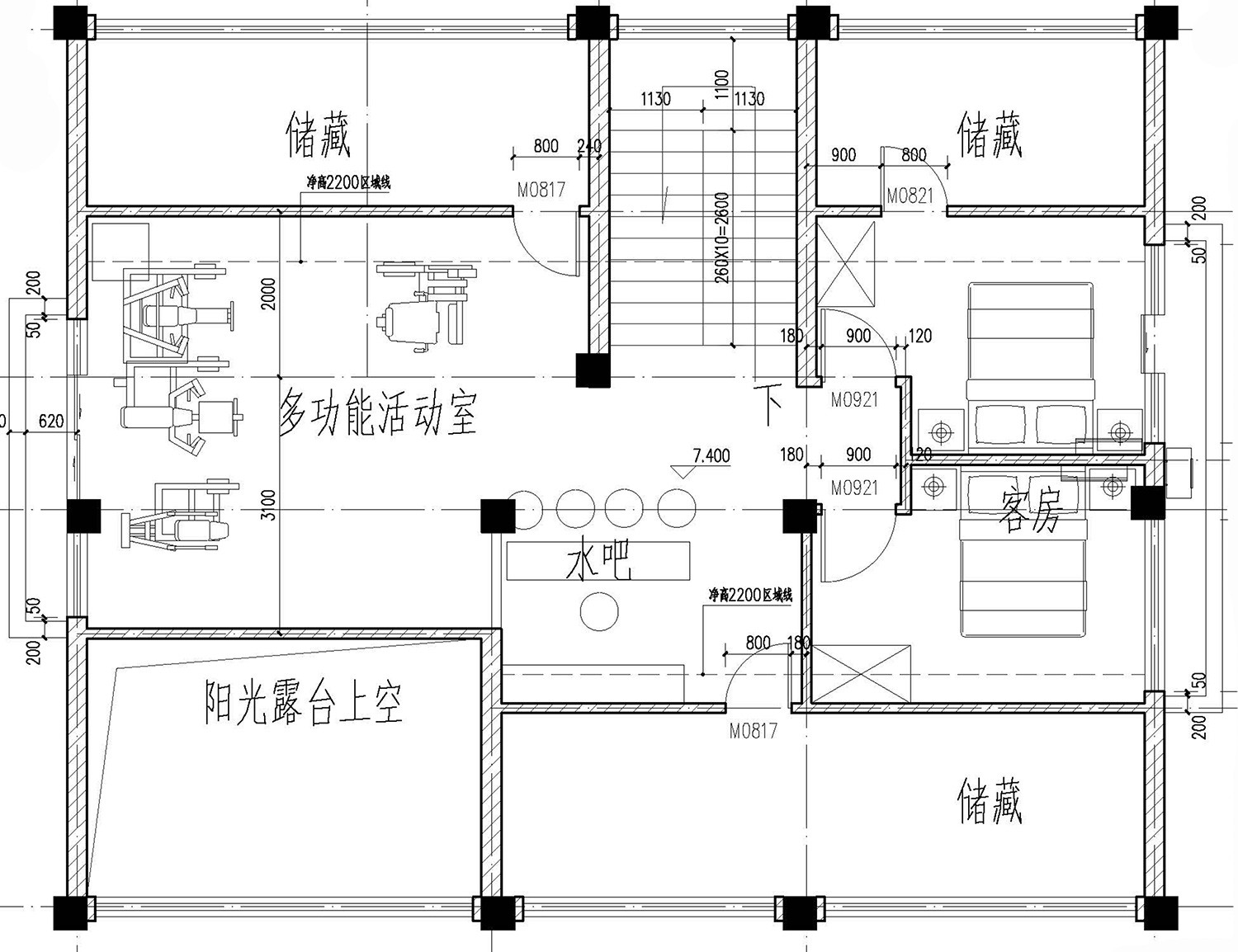
主体设计:

客厅、餐厅、厨房、卧室、公卫、阳台、露台。

。

转载请注明出自轩鼎自建房:://www.lemeizhai.com/