赚钱就是让自己的家人过得更好,让孩子接受良好的教育,让父母的身体健康长寿。今天给大家推荐你不可以错过的一款欧式="://www.lemeizhai.com/Picture.asp?PicClassID=88" target="_self">农村二层别墅设计,这套别墅非常适合农村,不管建在那里都不突兀是最适合普通家庭的农村自建别墅设计,造价不超过五十万,房子布局利用率非常高,比一般的别墅多了些房间每一层都有厨房,这样的房子适合和子女一起住。
效果图:


别墅层数: 二层
别墅风格: 欧式
占地面积:163㎡
开 间:14.5m
进 深:11.3m
建筑占地:14.5m×11.3m
建筑面积:296㎡
主体造价:42.3~47.3万
建筑结构:砖混结构
效果图:



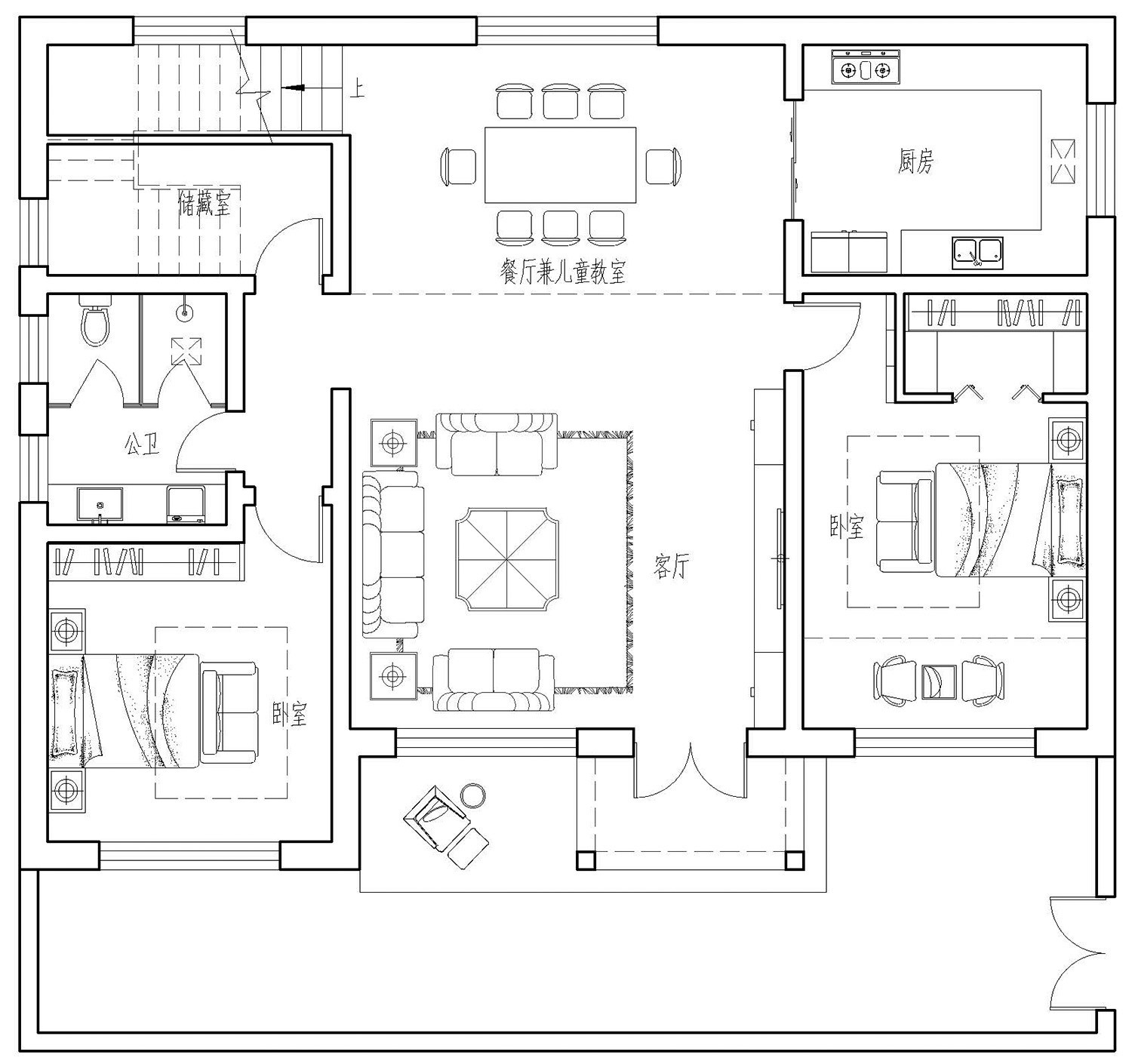
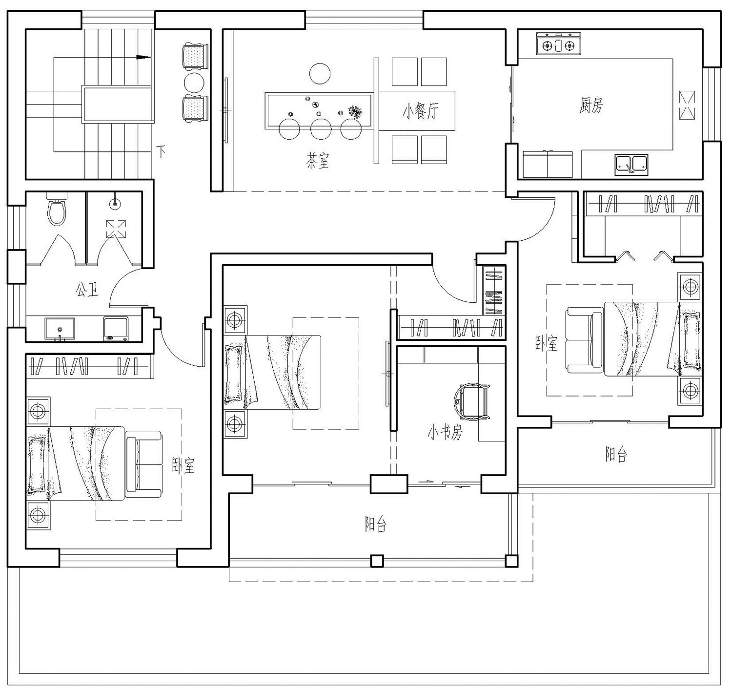
主体设计:

客厅、餐厅、厨房、卧室、公卫、阳台、露台。

。
转载请注明出自轩鼎自建房:://www.lemeizhai.com/