建房子传统的房屋已经不适应现在的需求了,农村别墅才是现在的正确选择,农村建房子花不了多少钱,主体也就花个二三十万左右。农村建别墅的越来越多,你是不是想建一栋别墅呢?今天给大家推荐一款价格实惠的二层="://www.lemeizhai.com/search.asp?SearchType=Software&imageField.x=48&imageField.y=26&SearchKey=%D6%D0%CA%BD%B1%F0%CA%FB%C9%E8%BC%C6" target="_self">新中式别墅设计,最高造价不超过30万,外形漂亮现代的时尚,住这样的别墅还是很舒服的。
效果图:

别墅层数: 二层
别墅风格: 新中式
占地面积:113㎡
开 间:12m
进 深:10m
建筑占地:12m×10m
建筑面积:226.9㎡
主体造价:23.0~28.0万
建筑结构:砖混结构
效果图:


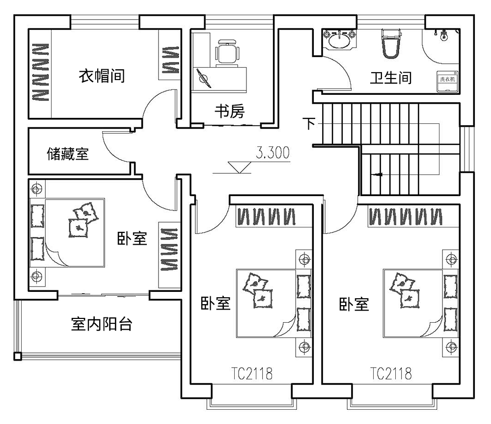
主体设计:。

客厅、餐厅、厨房、卧室、公卫、阳台、露台。

。
转载请注明出自轩鼎自建房:://www.lemeizhai.com/