在灯红酒绿的城市呆久了,渐渐想念乡村的土地,在这个快节奏的社会,人们越来越想念儿时的故土,人们最需要的是一个安静的环境和慢节奏的生活,不如转向乡村建设一栋别墅,好好享受。

今天这款特别的二层别墅小编要推荐给大家。这款别墅建筑面积200m2,整体尺寸15X11m,项目造价:30W
,建筑结构:框架,该别墅元素较为丰富,使得立面造型多元但是各元素搭配比较统一。希腊式山花的运用以及柱廊的统一搭配使得别墅洋气豪华。
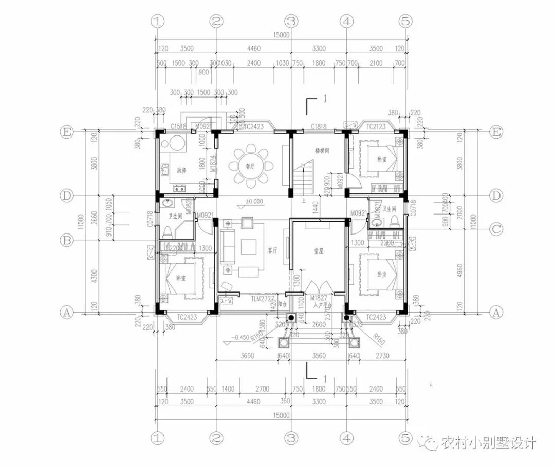
一层

住宅平面形制较为规整,形制为文艺复兴式平面排布,有秩序,但是符合现代功能。一层平面客厅与餐厅贯通,卧室在客厅东西两边同为南向采光,保证了较高的空间质量。其余辅助空间则打包安排在北部。
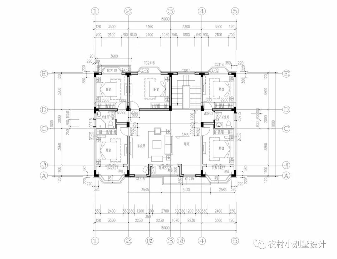
二层

二层设有四处卧室,一处主卧带有主卫和衣帽间,还带有一处小阳台北部客卧光线柔和,因考虑到为客人临时使用。家庭厅位于客厅上方,主要为家人交流使用。功能分布合理,交通清晰。
转载请注明出自轩鼎别墅设计://www.lemeizhai.com/