今天我们来介绍一款典雅温馨的三层小户型别墅,非常适合四口之家。别墅整体呈现代风,色调是比较暖色的红色和黄色,所以整栋别墅是非常温暖雅致的感觉。
别墅外墙是红色和白色的面漆装饰,屋顶采用橘红色的仿真琉璃瓦,给别墅增添了明快的感觉。别墅一层和二层都带有阳台,采光通风性好。
别墅效果图;

基本信息
占地面积:120多平方米
建筑面积:362平方米
结构类型:砖混结构
俯视图:

内部布局设计图:

一层设计图: 一层带有车库,设计有门廊,室内是客厅餐厅和厨房,后面还有一个小阳台,可以养一些花和植物等

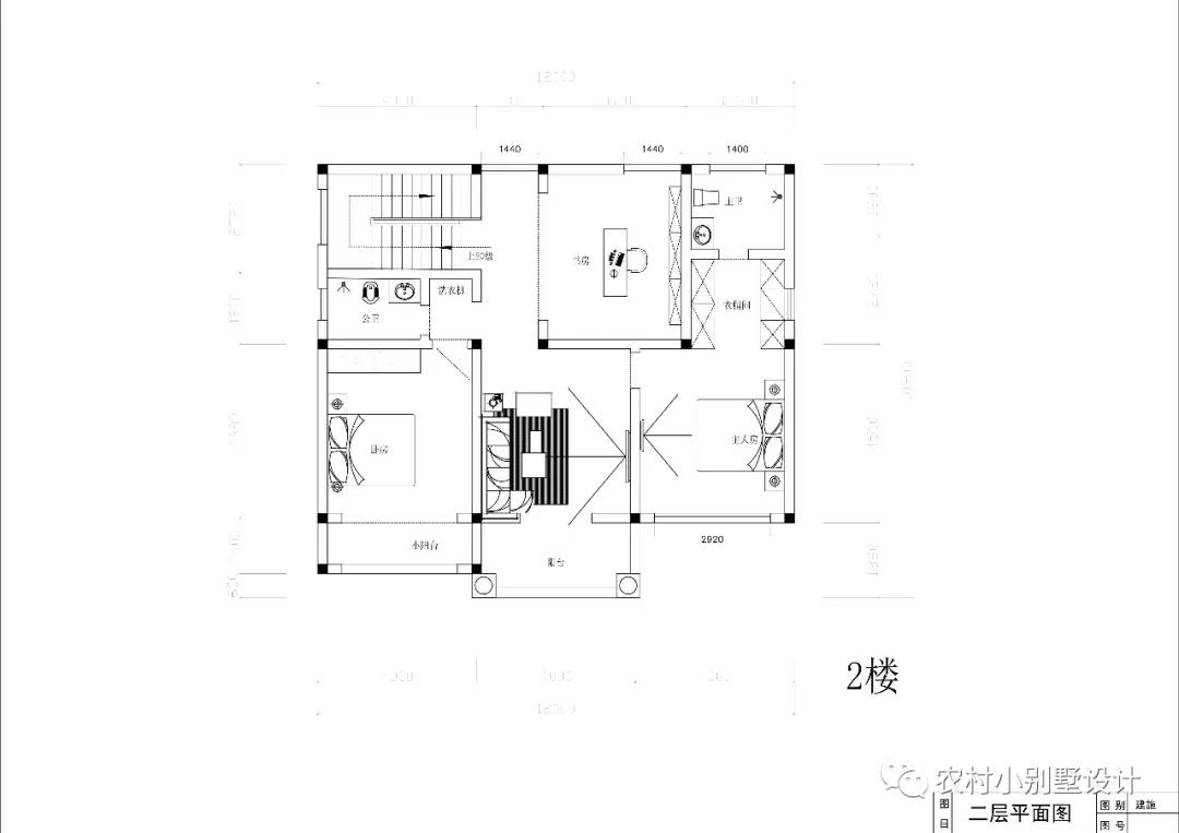
二层设计图:一间起居室,两间卧室,还有一间衣帽间,书房的面积较大,工作量大的朋友可以考虑这款。起居室带有露台,卧室带有阳台。

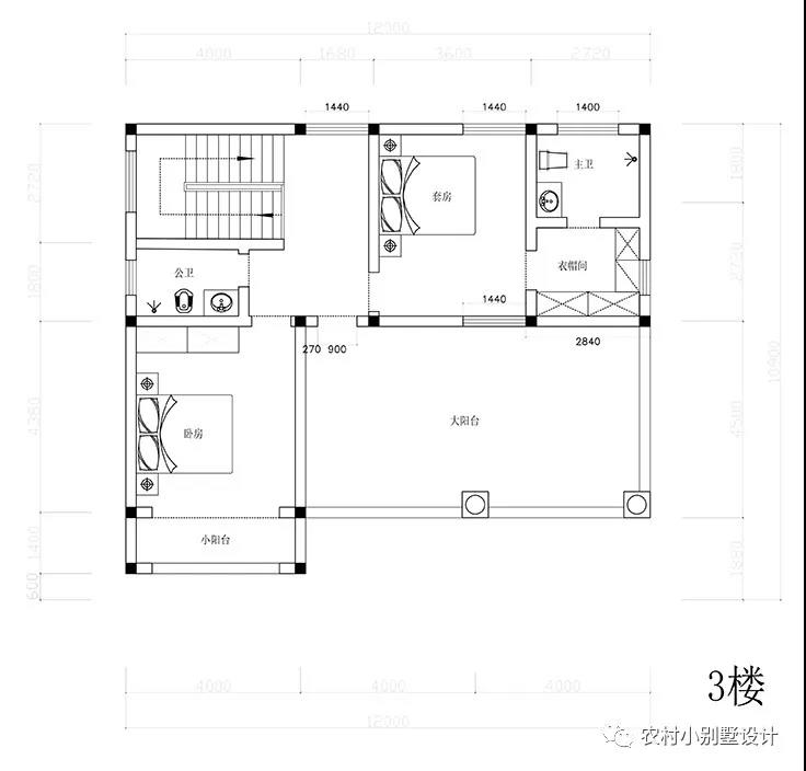
三层设计图:设有两间卧室和衣帽间。剩下的是大面积的露天阳台,非常豪气的大阳台不仅看起来美观,用处也多。
转载请注明出自轩鼎别墅设计="://www.lemeizhai.com/" _src="://www.lemeizhai.com/">://www.lemeizhai.com/