今天我们来介绍一款三层的现代风别墅,一共三层,窗框和栏杆是黑色,别墅的主色调是红色和米白色,整体较为典雅,大红色的外墙使别墅的风格更加新鲜明快。
别墅外墙一层是大红色石砖和灰色石砖装饰,二层和三层是米白色的石砖装饰,灰色的琉璃瓦装饰屋顶。
别墅效果图;

基本信息:
开间:9.4米 进深:10.8米 建筑面积:107平方米 总建筑面积:287平方米
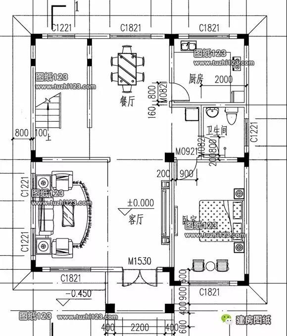
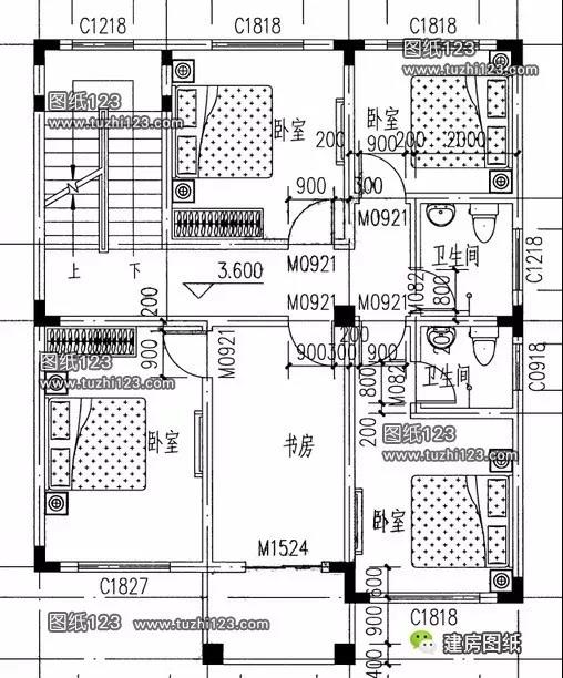
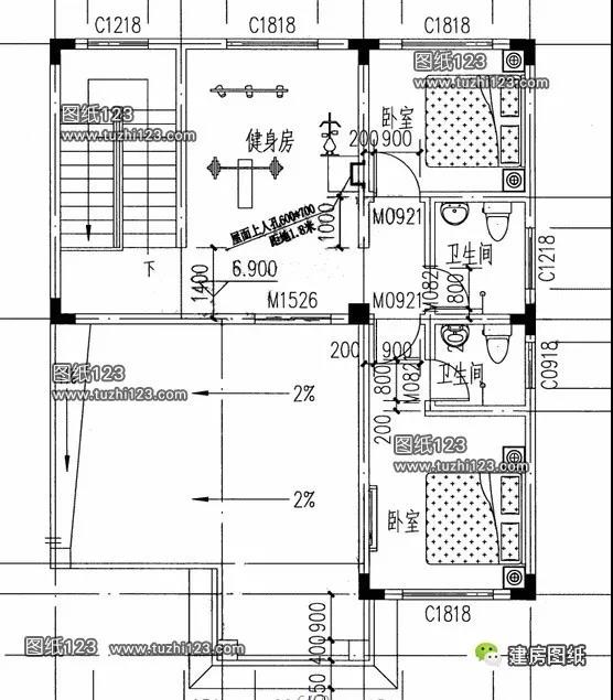
内部布局设计图:

一层设计图:客厅厨房和餐厅,还有一间卧室

二层设计图;设有四间卧室和一间书房

三层设计图:上楼后首先是健身房,还有两间卧室
转载请注明出自轩鼎别墅设计="://www/lemeizhai/com/" _src="://www/lemeizhai/com/">://www/lemeizhai/com/