在乡下建一栋别墅,怎么储藏蔬菜呢?其实这个问题很好解决。在乡下建的别墅大部分都是居住区,没有很好地地方储藏蔬菜,所以很多地区都建有地下室,地下室在东北称之为地窖。在乡下买菜的机会不多,大多都是自己种的,种太少不值当,种多了怎么办呢。这时候地下室的作用就体现出来了,所以在乡下建房怎么能没有地下室呢。
效果图:

这是一款带地下室设计的三层豪华农村别墅户型,11.8×10.4米的建房尺寸,占地面积129.64平方米,建筑面积472.87平方米,框架结构,主体造价50万左右。一栋好房子,不仅可以让全家人住的舒服,更是一种身份和品位的象征。
全景图:


别墅的造型自然是美观大气的,墙面装饰上用到的主要是仿大理石的真石漆涂料,无论是颜色选择上还是材料搭配,都是既经济效果又好,搭配一些浮雕辅助性装饰,屋面盖以蓝色琉璃瓦。
室内布局图:
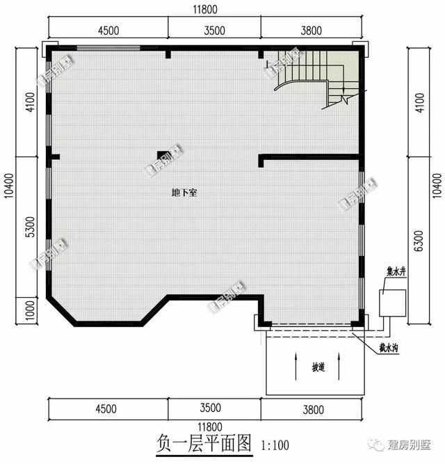
地下室设计:

方便用来储物的,部分露在地面上,预留坡道和车库门,便于停放车辆。
首层布局图:
设有一室两厅一厨一卫,客厅处用到多边形窗,空间大采光好,室内通透性也很不错,三跑的直角楼梯设计。
二层布局图:

配有三室一厅两卫,主卧内带独卫,另有一间配阳台的衣帽间设计,朝南方向也有一阳台方便晾晒用。
三层布局图:
两间卧室设计,配书房、阳台和观景露台。
转载请注明出自轩鼎别墅设计="://www.lemeizhai.com/" _src="://www.lemeizhai.com/" style="color: rgb(102, 102, 102); text-decoration-line: none; font-size: 13px; font-family: 宋体; white-space: normal; background-color: rgb(255, 255, 255);">://www.lemeizhai.com/