建别墅大家肯定喜欢外观漂亮或大气好看的,每个人都如此,现在人们不只注重物质层面上的需求,还注重精神上的需求。好看的别墅也是一件值得令人享受的艺术品,正如小轩推荐的这两款欧式别墅一样,这两款,不论哪一款都值得你去选择。
第一栋欧式别墅:

11.4×13米,占地面积142.08平方米,建筑面积417.98平方米,砖混结构,主体造价38万左右。
别墅主体墙面用到棕色小块面砖少量和大量的米黄色真石漆装饰,大门处的门厅设计精致,搭配落地大窗很大气,并使用到一些简单的欧式构件辅助性装饰,来达到美化别墅整体的效果。
立面图:

屋面上盖以一层蓝色的琉璃瓦装饰。

布局分析:



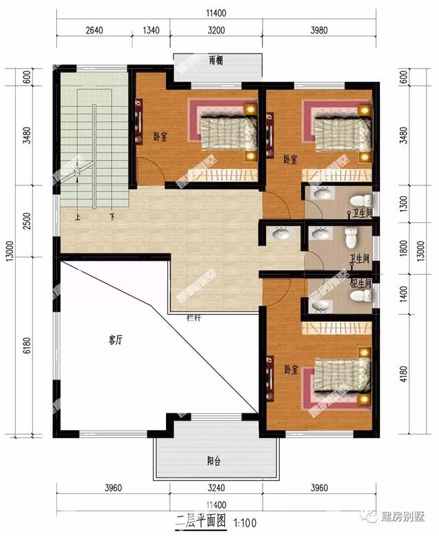
首层配有一室两厅一厨两卫,父母房内设私卫方便,南北通透性好,配有挑空的休闲茶室,待在客厅休息或者接待客人都是极好的;二层配有三室一厅三卫,这样的生活自然是私密性好且方便的;三层有三室一厅三卫,配书房一间和露台一个。
第二栋欧式别墅:

11.6×14.3米,占地面积173.26平方米,建筑面积476.98平方米="://www.lemeizhai.com/PictureShow.asp?PicID=1095&PicClassID=91" target="_self" title="砖混结构">,砖混结构,主体造价40万左右。
别墅主体墙面用到一些浅棕色面砖装饰,主要是为了保护基层,墙面不易弄脏好清理,其他空间用米色真石漆装饰,多边形窗造型好看,且能加强室内采光性。
立面图:

屋面盖以红色的琉璃瓦装饰。

平面布局图:



首层配有两室两厅一厨两卫,父母房内设私卫和生活阳台,该层配有休闲娱乐室一间,公卫置于双跑楼梯下方,餐厅处侧开门通透性好;二层配有四室一厅一卫,主卧内设书房,室内还有一个休闲活动厅,外配阳台设计;三层有四间卧室,外配大露台。
转载请注明出自轩鼎别墅设计//www.xd97.com/