今天我们来介绍一款较为="://www.lemeizhai.com/newsshow.asp?ArtID=1170" target="_self">豪华的大面积别墅房,别墅一共有三层设计,是偏希腊风格的设计,挑空大客厅和浮雕设计也是非常的典雅大气。别墅整体是偏大气的豪华大面积型别墅房,适合家庭成员较多的居住,房间数量足够多,面积大。
别墅外墙采用米白色的外墙,其中蓝色的琉璃瓦装饰非常搭配。其中别墅的窗户面积非常的大,看起来很气派。让我们来一起看看:
别墅效果图;

基本信息:
开间:13.8米
进深:15.4米
占地面积:188㎡
建筑面积:480㎡
结构类型:框剪结构
建筑层高:12.57米
设计师微信:937080
全景图:


内部布局设计图:

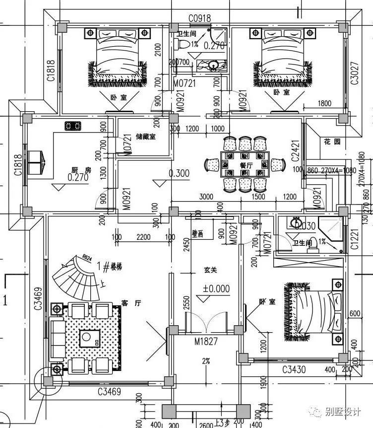
一层设计图:进门后首先是玄关,然后设计有客厅餐厅和厨房,还有三间卧室加一间小储藏室,还有一件室外的小花园,一层的设计非常紧凑,充分利用了空间

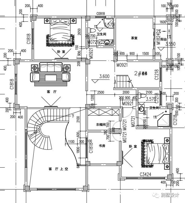
二层设计图:上楼后是客厅和茶室,还有一间书房和衣帽间,还有两间卧室

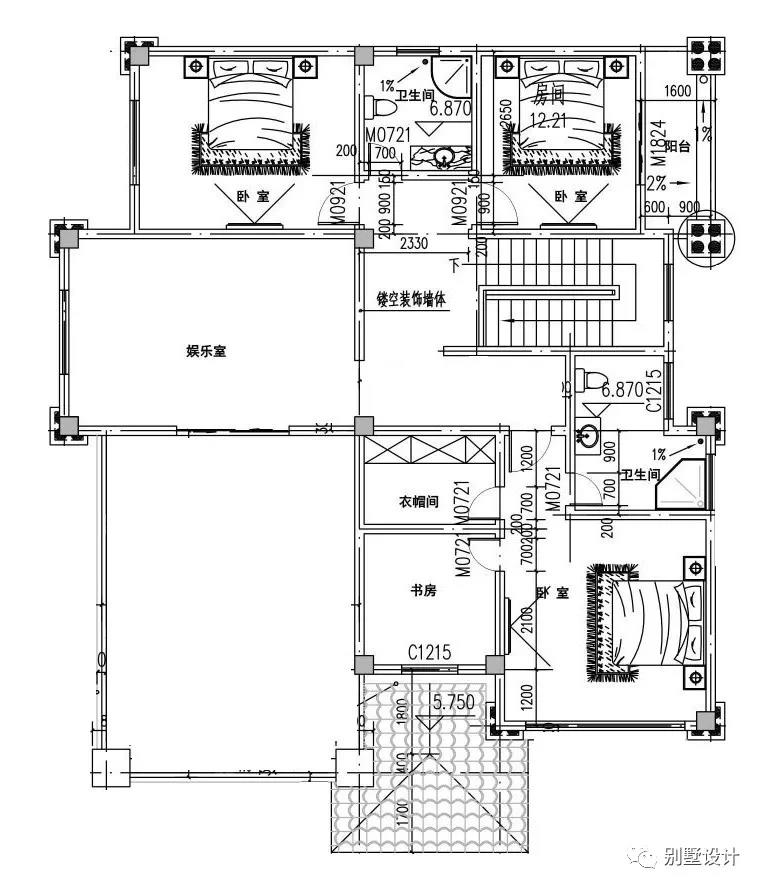
三层设计图;三间卧室和一间书房还有一间衣帽间还有一间娱乐室
转载请注明出自轩鼎别墅设计="://www.lemeizhai.com/" _src="://www.lemeizhai.com/">://www.lemeizhai.com/