今天给大家推荐一款三层现代别墅,真羡慕有钱人的生活呀,累了就到乡下建一栋大别墅,弄个庄园。没事遛遛狗喝喝茶,吃没有污染的绿色蔬菜。举办舞会或各种聚会,约上三五好品茶论道,不理会那些烦心琐事。
效果图:
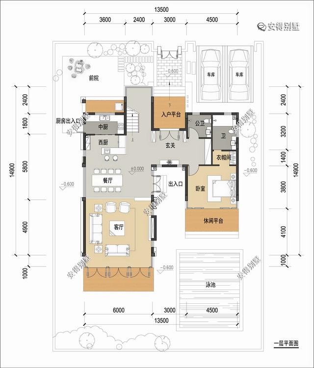
首层占地面积为:220平米(不包括庭院),开间13.7米,进深16.1米,共3层,总建筑面积为:395.76㎡。
立面图:






平面布局如下:

一层有公共的厨房、餐厅和豪华大客厅,流线清晰,布局宽敞舒适,透过落地大窗看到庭院美景,真是一种生活的享受。

本栋别墅共3三层,一共有6间卧室套房,每间客房卧室还有私人的休闲露台,落地大窗户。

转载请注明出自轩鼎别墅设计图="://www.lemeizhai.com/news.asp?page=1" target="_self" title="宣鼎" style="color: rgb(102, 102, 102); text-decoration-line: none; font-size: 13px; font-family: 宋体; white-space: normal; background-color: rgb(255, 255, 255);">://www.lemeizhai.com/