今天我们来介绍一款现代田园风的三层别墅房。别墅整体是比较简单设计,配色也是比较含蓄清新,别墅风格偏向田园风格,但是也不失时尚感。让我们一起来看一下
别墅外墙是纯白色,屋顶是青黛瓦,一共三层的设计,
别墅效果图:

别墅全景图:











别墅内部布局设计图:

一层设计图:一层设计有宽敞的客厅,还有厨房和餐厅各两间,完全不用担心家中聚餐空间太小,还有老人房,一间储藏间和一间洗衣房。一层别墅前后都各有走廊。

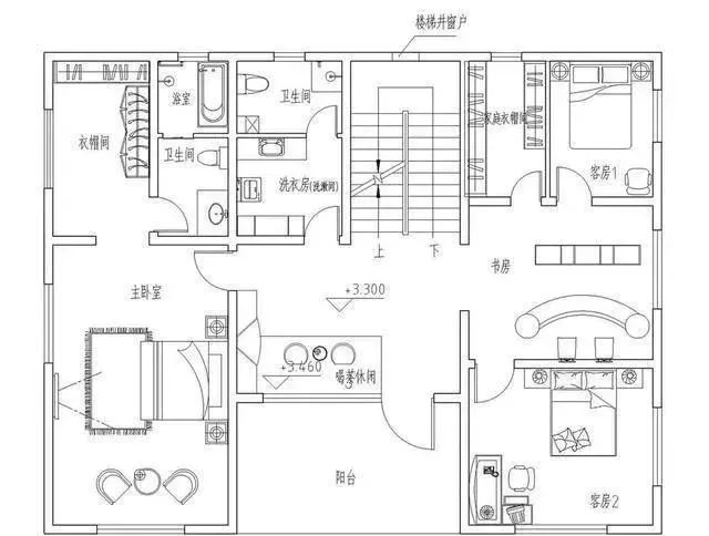
二层设计图:上楼后首先是茶室和阳台,左侧是主卧室衣帽间和洗衣房,右侧是两间客房和书房

三层设计图:茶室和露台还有两间卧室衣帽间,还有以一间洗衣房
转载请注明出自轩鼎别墅设计="://www.lemeizhai.com/" _src="://www.lemeizhai.com/">://www.lemeizhai.com/