看惯了纸醉金迷,看淡了浮华人世,心中只想找回儿时的纯真与宁静,逐渐喜欢上了小清新的风格,跟儿时的简单快乐。在嘈杂的城市住久了,不如到农村建一栋田园风格的别墅,感受小清新的魔力。未必要搞得那么浮夸,简简单单才是心中所需,今天这款清新别致的田园风格别墅值得你拥有,找回心中那一抹纯真。
效果图:

户型编号:JF9317
主体毛坯参考造价:20-26万
占地面积:93.2平方米
建筑面积:180.7平方米
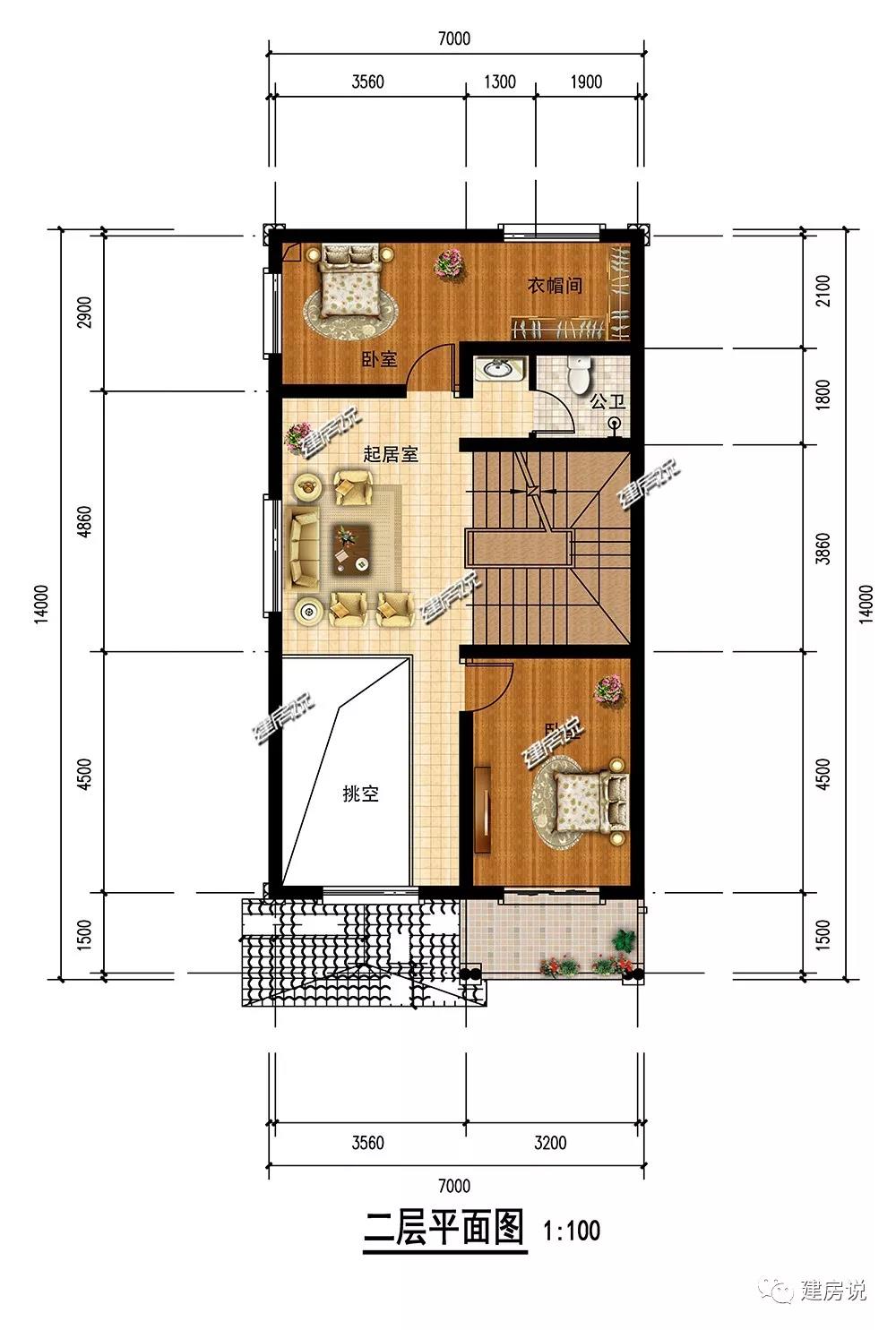
开间7米,进深14米
="://www.lemeizhai.com/PictureShow.asp?PicID=580&PicClassID=91" target="_self" title="框架结构">框架结构,建筑高度8.5米
别墅细节图:


别墅外墙主体白色涂料与深红褐色文化石相间装饰,屋顶是深蓝灰色琉璃瓦,别墅外观田园乡村风,罗马柱与让整栋别墅更有异域风格。
全景展示图:




室内布局设计:

一层:入门是宽敞客厅,方便接纳亲朋好友;厨房与餐厅相连,用餐便利;设有2间卧室。

二层:设有2间卧室,主次分明;挑空客厅的设计,使整个楼层明亮通透;设有起居室,方便家人之间联络走动。
转载请注明出自轩鼎别墅设计="://www.lemeizhai.com/" _src="://www.lemeizhai.com/" style="color: rgb(255, 51, 0); text-decoration-line: none; font-size: 13px; font-family: 宋体; white-space: normal; background-color: rgb(255, 255, 255);">://www.lemeizhai.com/