在山东的秦先生通过自己的努力打拼,积累了一定的财富秦先生想起已经有点破旧了的老房子,因为老房子陪盼着他度过了美好的童年,这些年秦先生回乡探亲看见家乡的小别墅越来越多,想着父母年纪大了也该想想福了,于是本着让父母回乡享福的心愿秦先生把家里的老房子拆掉了重建。



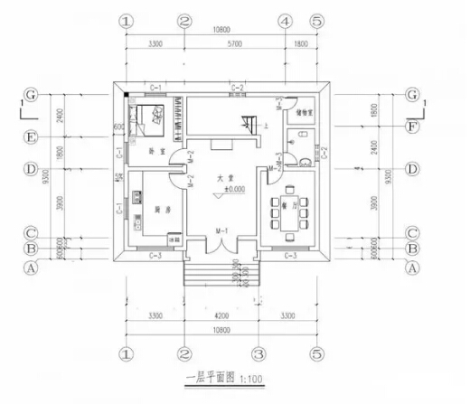
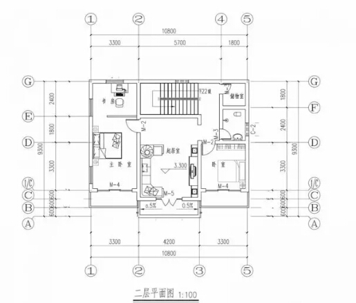
由于母亲比较喜欢吃柴火饭,所以在平面图的基础上,在房子后面增加了独立的厨房和柴火灶。
请人工拆的老房子,包干就是10000元。本来想用挖机拆,但是听了家人的意见,用人工拆,父母不想让机器拆是因为这样可以把新房的基础位置空出来,不用处理渣子,拆房的旧砖大部份都可以利用,而且还能省3-4万块的砖钱。
开始打桩,直径80-100,深度1.5-2米
已经完成基础梁施工,地梁300*600,用了23方C30商砼
铺10-15公分沙回填作防潮处理

一层墙砖砌完了,木工在支构造柱模板,共22根构造柱,浇好构造柱砼后再装二层楼面现浇模板
经过再三考虑和结合实际把前面的两边房内阳台取消,主要是做了阳台后房小了很多,另外又担心渗水问题

二层砖墙已砌好
二层封顶,目前花了21万,主体完工估计26万。
主体完工,喜封宅顶
内外墙粉刷和屋顶砂浆找平
外墙做真石漆
搬入新居



从17年正月开始拆老宅,到今年正月搬入新居,前后历时一年左右,为建这房尽了自己最大努力和各方面压力,其中滋味只有深入体会的人才知道,但到最后搬进新居看到父母脸上乐呵高兴的表情时秦先生表示再苦再累也都值得 ,只要让父母开心做什么都行谁让他是俺爹俺娘了。