有一些人觉得,农村建的别墅不大气,那是没到乡下去看,有些农村地区建的别墅都像城里的豪宅一样,有些还不比城里的差。只要宅基大得到审批,想怎么建都行,关键还省钱,就性价比这块来说,就挺吸引人的。今天小编特别推送两款四层别墅,来看看怎样吧
第一栋:

10.5×15.44米,墙面用面砖和浮雕装饰,大门处的罗马柱搭配的相当大气,还配有落地大窗,屋面盖以蓝色琉璃瓦,毫无疑问这栋别墅是气派的。
室内平面图:

首层:配有一室两厅一厨两卫,父母房内设主卫,客厅宽敞空间大,配一间休闲茶室,客厅挑空设计

二层:设有三室两卫,主卧带独卫

三层:有三室一厅两卫,主卧带独卫,外配生活阳台

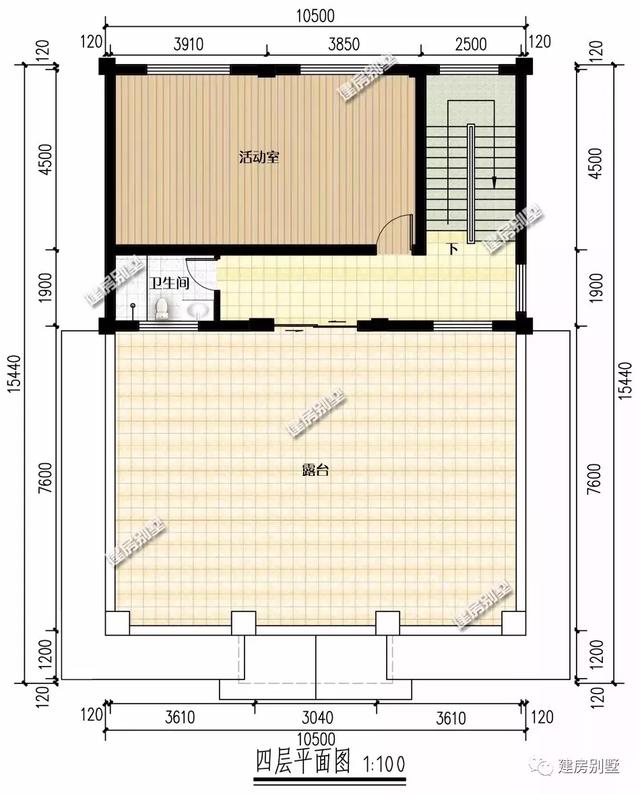
四层:有一间大空间的活动室,具体功能自己分配,外配大露台。
第二栋四层别墅:
10.5×10.3米,这栋别墅的外观造型和第一栋不太一样,每层都设有一个较大的阳台,看着层次感极好,墙面用真石漆装饰,屋面配红瓦。
室内布局图:




首层配有一室两厅一厨一卫,室内采光好;二层和三层的布局一样,都设有三室一厅一卫,配室外生活阳台;四层有两室一厅一卫,外配观景式露台。
转载请注明出自轩鼎别墅设计://www.lemeizhai.com/