开间小建别墅该怎么办呢?别着急,今天看了这款别墅后你会明白的,今天给大家推荐一款小开间的三层欧式别墅,这款别墅最符合我们的需求,来看看吧。这款别墅布局很合理,别看它小,但布局实用。
效果图:

别墅基本信息:
1、户型编号:JF9242
2、主体毛坯参考造价:29-38万
3、占地面积:95.6平方米
4、建筑面积:266.8平方米
5、开间7.5米,进深13.5米
6="://www.lemeizhai.com/PictureShow.asp?PicID=1134&PicClassID=88" target="_self" title="框架结构">、框架结构,建筑高度12.494米
别墅细节图:


别墅外墙主体以米白色外墙砖装饰,屋顶是蓝色西班牙瓦,凹凸有致的阳台,满满的欧式浪漫气息。
全景展示图:



平面布局图:

一层:设有2间卧室;餐厅与厨房相连,干净卫生;客厅可供家人放松休息。

二层:设有3间卧室,大小合理;阳台和客厅相连,光线充足;影音室可全家观看影片。

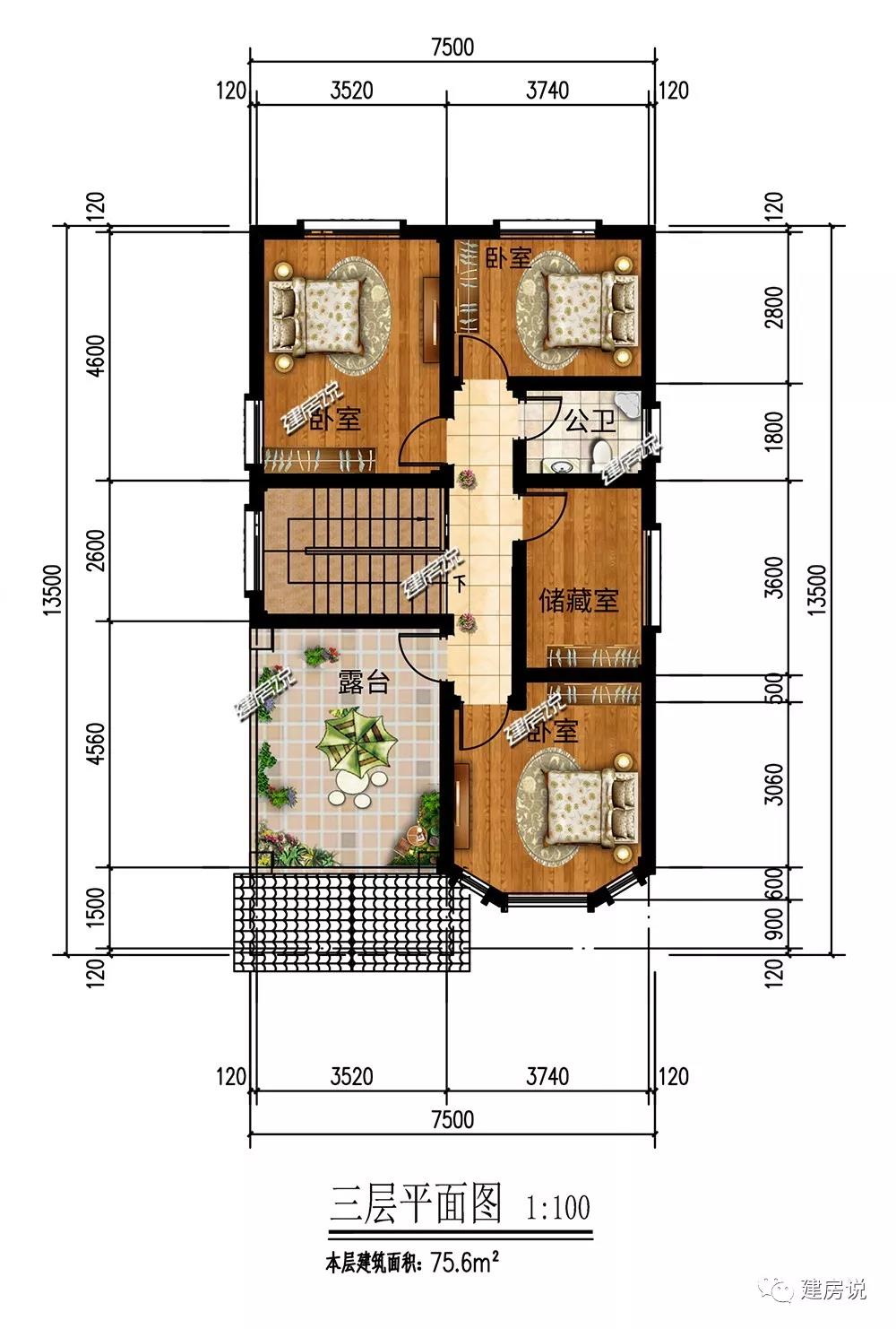
三层:设有3间卧室,大小合理;储藏室可存放家中杂物;宽敞露台适合晾晒。
转载请注明出自轩鼎别墅设计:://www.lemeizhai.com/