在农村建什么样的别墅都行,但小编还是喜欢有小院的别墅,小院能够提升美观度,还能增进安全感跟私密性。今天给大家推荐一款实用美观的别墅,这一款就最好。
效果图:

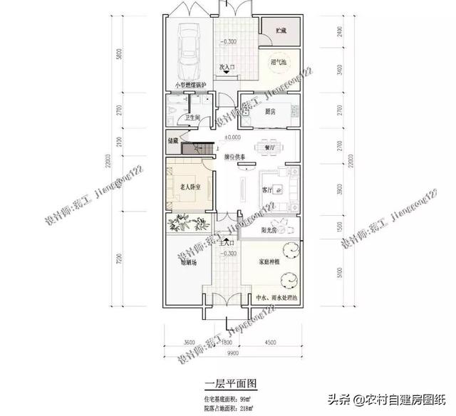
建筑主体空间采用外院、居信空间、内院的模式层层推进。外院是相对外向的空间,供邻里之间的交流休憩用,结合晾晒、庭院种植优化空间环境,形成祥和宁静的农家小院。后院做为内向型的空间院落,结合贮存、农耕等功能设计,构成农耕气息浓郁的么密型小院。
立面图:


室内布局设计:

首层将老人房和客厅布置在阳光充裕的南向,厨房、卫生间等功能布置在北面,构成防寒空间。

二层将主卧室。设计在南侧,次卧和卫生间设计有北侧。
转载请注明出自轩鼎别墅设计://www.lemeizhai.com/