建别墅是一件大事,什么都要考虑,稍有不慎就可能功亏于愧,所以要面面俱到。找专业的施工队,和图纸网站很有必要。这关系到建房的成果,今天小编给大家推荐两种设计方案的8*12米的别墅来一起看看吧。
基本信息:
开间8米
进深11.9米
占地面积86.26平方米
建筑面积252.36平方米
别墅方案一:

建筑整体为欧式风格,方形罗马柱挑高入户门厅,更显豪华大气。深浅相搭的外墙颜色,非常靓丽,在农村一眼就能吸引人球。门楼有二种方案,一种是方型柱加圆形罗马柱配人字型门头,非常有气势;一种圆形罗马柱平顶门楼,更显简约精致。
方案布局:



三层的方案室内共设计有5室3厅1厨5卫2阳台。一层进门是客厅,客厅设计有神龛。朝南的主卧室方便老人居住。厨房和餐厅相邻非常方便。
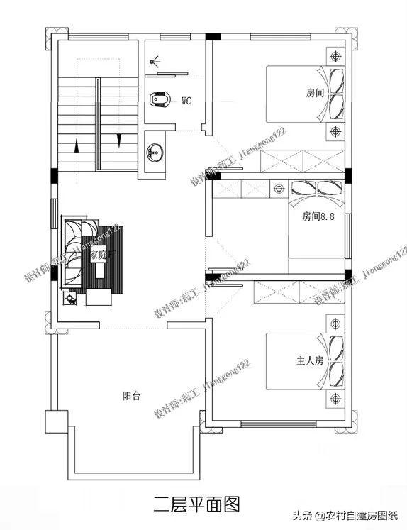
别墅方案二:

二层的方案共设计有4个房间,一层和格局和方案一是一样的;二层设计有3间卧室,带客厅和卫生间,也设计了宽敞的露台。
方案布局:


转载请注明出自轩鼎别墅设计://www.lemeizhai.com/