现在的年轻人都是有朝气的,有活力的一代人。在建房这一块,他们都喜欢追求个性,追求潮流,建别墅是为了让生活更加有奔头,好的别墅款式可不多。今天小编特意推荐的别墅是一款私人订制的现代别墅,这款别墅处处体现生活的情趣,来看看吧。年轻人最喜欢了
效果图:

别墅信息:
参考造价:79-86万
占地面积:242.21平方米
建筑面积:783.97平方米
开间22.4米,进深20.155米
砖混结构,建筑高度11.6米
全景展示图:





别墅外墙主体用黄色仿木纹色和白色真石漆搭配,木色与乳白色的融合,配上暖色灯光,将整体烘托得简约大气,温馨感十足。
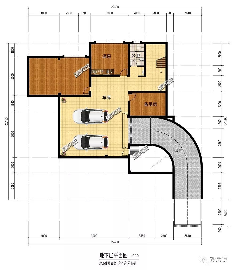
室内布局设计:

地下层:通过坡道进入车库,空间开阔,方便停泊;配有酒窖,备用房等设施。

一层:设有玄关,避免开门见山;独立厨房与餐厅相连,干净卫生;茶室和麻将室,满足了家人们娱乐休闲。

二层:设有3间卧室,主次分明;起居室满足家人日常活动;宽敞露台适合晾晒衣物,种植花草。

三层:设有2间卧室,主次分明,书房适合学习办公;宽敞露台打造一个空中花园,观景视野极佳。
转载请注明出自轩鼎别墅设计://www.lemeizhai.com/