建别墅是为了更好地生活,生活的态度就是边工作边享受。不论你处于何地,都能建一款很不错的别墅。今天小编特意推荐这款适合在面宽18米宅基上建造的三层别墅,红白相间的外墙装饰,更加增添魅力。这样只有面宽10米的别墅十分适合搭配庭院,你觉得呢?来看看吧,相信你会觉得合理。
效果图:

别墅信息:
参考造价:40-47万
占地面积:125平方米
建筑面积:400平方米
开间10米,进深13.04米
框架结构,建筑高度13.6米
全景展示图:




别墅外墙主体以橘红色外墙砖和浅棕色文化石装饰,屋顶是橘红色琉璃瓦,整体装饰喜庆大气,让人感到温暖。
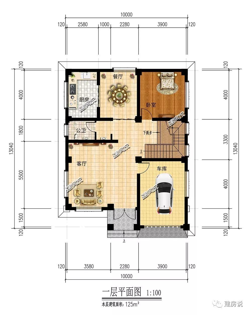
室内布局设计:

一层:自带车库,方便泊车;宽敞客厅方便家人沟通感情;厨房与餐厅相连,干净卫生;设有1间卧室,可安老人房。

二层:设有2间卧室,主次分明;客厅与阳台相连,采光极好;书房适合学习办公,给房子增添书香气。

三层:格局和二层相似,上下水结构对齐,降低施工难度。

屋面层:宽敞空间适合晾晒衣物,种植花草。
转载请注明出自轩鼎别墅设计://www.lemeizhai.com/