想要更好的额生活就建别墅,建一套舒适的大气的别墅不亏。这些年建别墅的多了,自己不建说不过去,也没面子,人嘛,是一个好面子的生物,谁不想有一套好别墅呢。今天小编推荐一款自带独立厨房的别墅来看看吧。
效果图:

别墅信息:
参考造价:35-40万
占地面积:150.13平方米
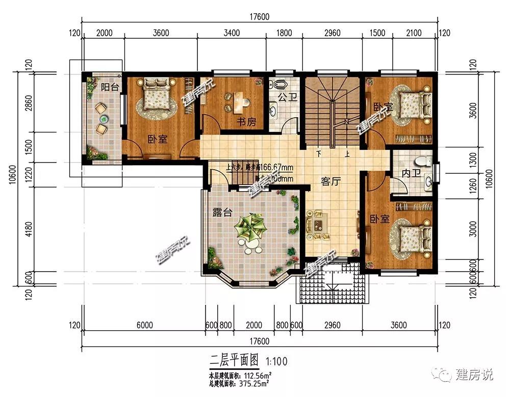
建筑面积:375.25平方米
开间17.6米,进深11.5米
框架结构,建筑高度10.409米
全景展示图:





别墅外墙主体以米黄色与棕色外墙砖搭配装饰,屋顶是蓝色小西瓦,整体装饰视觉感受丰富,靓丽清新。
室内布局设计:

一层:设有独立厨房,符合农村生活习惯;宽敞客厅,满足家人日常活动;设有2间卧室在静区,安静不被打扰。

二层:设有3间卧室,主次分明;宽敞露台,适合晾晒,打造空中花园;书房满足家人办公学习的需求。
隔热层:超大空间的储物间,可以归纳杂物,储存农作物。
转载请注明出自轩鼎别墅设计://www.lemeizhai.com/