今天小编推荐一款很不错的别墅,这款别墅外观跟设计细节都十分好看,别看它是一款二层别墅,却不输三层别墅。给父母养老最合适了,最符合农村环境的别墅很少有。今天这款值得你建造。
效果图:

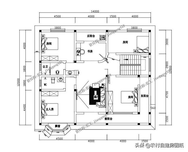
占地尺寸:14m×12m
镜像图、;


建筑底层用深色的瓷砖装饰墙体,复古使整个外观充满生机,二层用淡黄色的外墙涂外,让整座别墅显得典雅与文静。每个立面的造型都非常美观,层次有致的坡屋顶,不仅美化了别墅的造型,以排水方便也起到了作用。
室内布局设计:

一层:入户位置的玄关设计了堂屋神位,空间可纵向延伸,使入户位置更显得通透大气。老人房设计在南向,并带有内卫,方便家里的老人居住。次卧和次卫也设计在东侧,动静分区合宜,同时也方便建筑化粪池和解决排水问题。

二层:共设计有4间卧室,2个卫生间,客厅,书房等功能都非常齐全。有前、后、东三个阳台,让整层的采光更好,大面积的阳台让房屋的观景角度十分全面。
转载请注明出自轩鼎别墅设计://www.lemeizhai.com/