小宅基建好别墅。今天给大家介绍一款,轻奢有风度的四层别墅,这样的别墅真的好。一起来看看吧,浪漫与庄严的气质,圆形的拱门尽显雍容富贵,而又清新不落俗套,
效果图:

别墅信息:
编号:4051
结构类型:框架
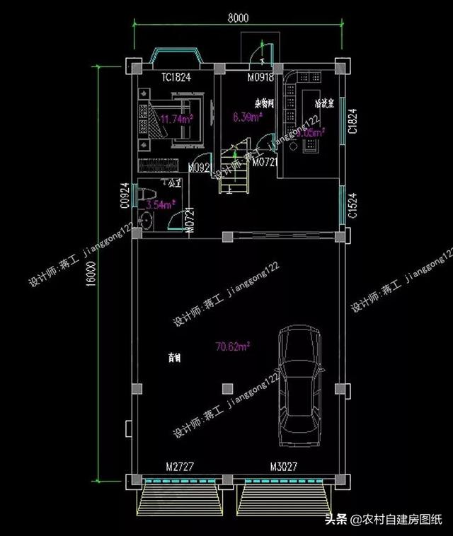
占地尺寸:8*16m
占地面积:133.82平方米
建筑面积:396.72平方米
室内布局设计:

一楼:主要设有车库,方便停车。一间杂物间,避免堆放在一楼给客人一种视觉冲击效果,还设有厕所与居住房间,在夏天时可居住,避暑,还设有娱乐室。
二楼:布置规格大,户外的阳台便于观光,也可用于日常晒衣服,也可用于布置茶几,桌椅等装饰家具,爱养花的用户也可摆上自己喜欢的花盆之类。
三楼:则主要为居住场所,当家里居住不下时,可安排在三楼,且三楼的视野观光效果很好

四楼:有设有娱乐室,可供大人与小孩之间的互动,现在的小孩与大人之间总是缺乏很好的沟通与交流,那么一起在娱乐室中,边玩边沟通无疑不是一个最好的选择。
转载请注明出自轩鼎别墅设计://www.lemeizhai.com/