今天小编推荐的这款中式别墅,庭院的设计真的牛。看惯了传统的欧式别墅,偶尔换换口味,看看中式别墅的风采吧。你一定会发现一款特别适合你的别墅,既然打算建房了,一定要事先做好准备噢。

别墅信息:
编号:3411
结构类型:框架
占地尺寸:13.1*10.9m
占地面积:134平方米
建筑面积:358平方米
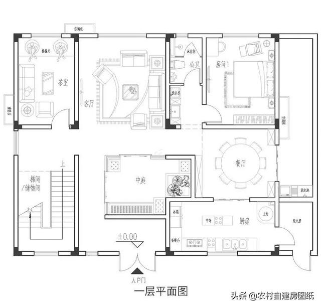
室内布局设计:

一层:有玄关要求的也可以放心的看这一款,通过玄关,进入里面还有一个中庭,可以当自己的小菜园或者小花园都可以。卧室,厕所,洗漱台,都有其独立的空间。有些地方的农村人民还保持着烧柴火的习惯,那么这一款也是非常合适的。厨房内设有单独的柴火房。

二层:二楼就和平常的别墅一样,设为专门的起居生活之地了,毕竟住的地方还是要考虑住的房间嘛。

三层:三楼也有房间,可以作为备用房间,还设有书房,想静静看书的时候可以上三楼
转载请注明出自轩鼎别墅设计://www.lemeizhai.com/