您好,欢迎访问轩鼎房屋图纸网,轩鼎建筑为您提供新农村房屋设计图、别墅设计图纸以及别墅定制设计与咨询服务。
 
 
  热门搜索:自建房 别墅设计 房屋设计图   
网站首页 图纸大全 定制设计 作品展示 建房图文 联系我们
一层房屋图纸
二层房屋图纸
三层房屋图纸
四层以上图纸
双拼房屋图纸
其他建筑图纸
 
 
 您的位置:首页 ->> 建房图文 ->> 新中式别墅:传统与现代的完美融合
 
 

新中式别墅:传统与现代的完美融合

发布时间:2025/7/20 22:23:19 点击数: 117次 

新中式别墅:传统与现代的完美融合

          在现代别墅设计中,新中式风格凭借其独特的韵味,成为众多业主的心头好。这栋别墅便是新中式风格的典型代表,从外观到室内布局,都展现出了独特的设计理念。

·      外观设计 

          从外观上看,这栋别墅采用了新中式的设计风格。红砖与白色墙面相互映衬,给人一种简洁而不失大气的感觉。门前的小花园里,种植着一些绿植,既美化了环境,又体现了乡村的自然特色。这种设计风格,既保留了乡村的质朴,又融入了现代的简约元素,为居住者打造出一个与自然和谐共生的居住环境。


A.jpg

·      第一层 

          进入房屋内部,首层的布局设计十分合理。

1.    客厅、餐厅、厨房等功能区相互连接,形成一个开放的空间,方便家人之间的交流与互动。

2.    客厅宽敞明亮,是家人休闲娱乐的主要场所。

3.    餐厅与厨房相邻,方便用餐与烹饪。此外,首层还设有两间卧室和一个卫生间,满足了基本的居住需求。

4.    这种布局设计,既考虑了生活的便利性,又注重了空间的利用效率。


A2.jpg

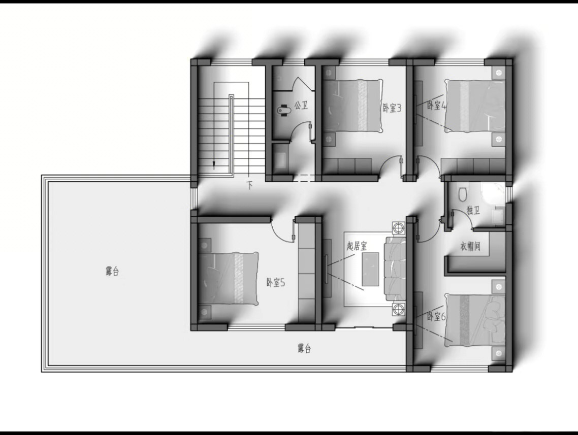
·      第二层 

          二层的布局设计更加注重居住的舒适性。

1.    四间卧室为家人提供了私密的休息空间。

2.    其中,部分卧室还配备了独立卫生间和衣帽间,彰显出主人的尊贵身份。

3.    此外,二层还设有一个起居室和一个露台,居住者可以在这里休闲娱乐、欣赏美景,享受生活的惬意。

4.    这种布局设计,既满足了家人的居住需求,又为他们提供了一个放松身心的空间。

A3.jpg

          总的来说,这栋新中式别墅的室内外设计,充分体现了传统与现代的完美融合。从外观到内部布局,每一个细节都经过精心设计,为居住者打造出一个舒适、便捷、与自然和谐共生的居住环境。在未来的别墅设计中,我们应继续探索这种融合之道,为人们创造出更多高品质的居住空间。

转载请注明="://www.lemeizhai.com/" target="_self">://www.lemeizhai.com/

 
· 可以三代人同时居住的简欧别墅设...
· 农村别墅建别墅就应该建居家休闲...
· 板房和塔房的区别(塔楼和板楼哪...
· 空调网拆下来后怎么安装(空调滤...
· 展示两种不同风格的房屋设计
· 二层别墅设计​,建一栋在...
· 现代双层别墅设计,大庭院和水景...
· 竹柏的养殖方法(日常家庭中竹柏...
  关于我们 网站事务 帮助中心
客服热线:400-079-6579
客服QQ:10928711 10928755 10928799
地址:山东省潍坊财富大厦1801
 

预定须知
顾客必读
配送方式

 


Copyright 2016 www.lemeizhai.com All Rights Reserved ICP备案序号:鲁ICP备2026012448号-1
轩鼎房屋图纸 电 话:0536-3385581 3385582 传 真:0536-3385581 地 址:山东省潍坊财富大厦1801


keywords:房屋设计图 房屋设计图 农村房屋设计图 农村房屋设计图 建房图文