农村建房十分火热,凡是家里有地的,差不多都自建别墅。今天小编给大家推荐三款不同的中式别墅,农村建欧式别墅的太多了,做人就不要随波逐流、要大胆做自己。来看看这三款别墅吧。
户型一:
编号:2085
结构形式:砖混
建筑高度:7.8m
占地尺寸:12m×16.5m
占地面积:190m2
建筑面积:369m2
室内布局设计:


整个别墅外观比较的漂亮采用了仿古加现代风格的装修,很讲求房子的整体的外观美,外观颜色搭配也十分的清新淡雅,是现代很多年轻人喜欢的别墅设计!
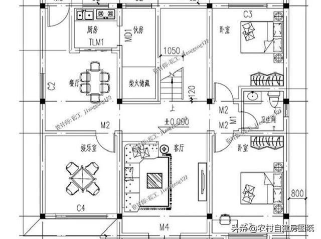
户型二:

编号:2086
结构形式:砖混
建筑高度:7.8m
占地尺寸:11.4m×16.2m
占地面积:184.6㎡
建筑面积:369.3㎡
室内布局设计:


这款别墅还保留了,农村传统的柴火灶,更多以一丝田间色彩,同时也会勾起儿时的回忆。6室2厅的设计,住下中到大户人家根本不是什么问题!
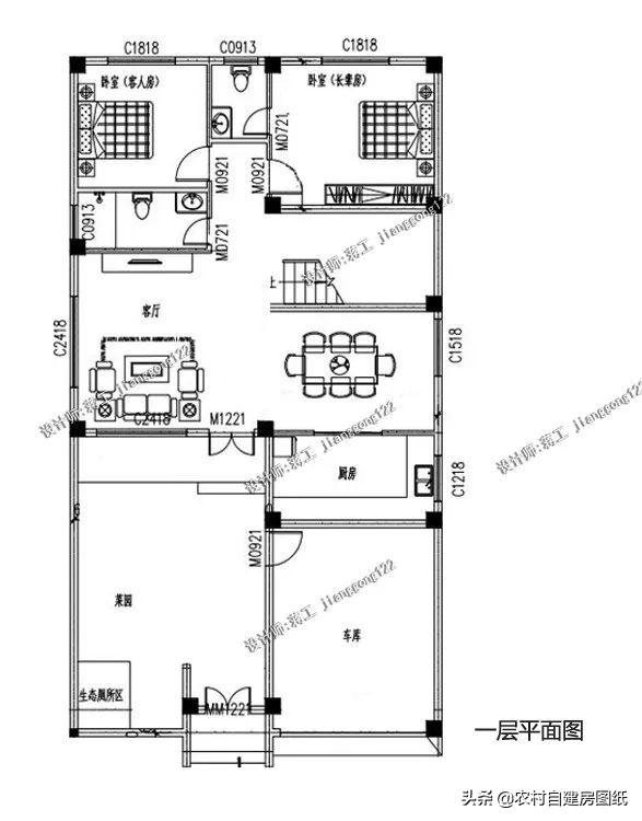
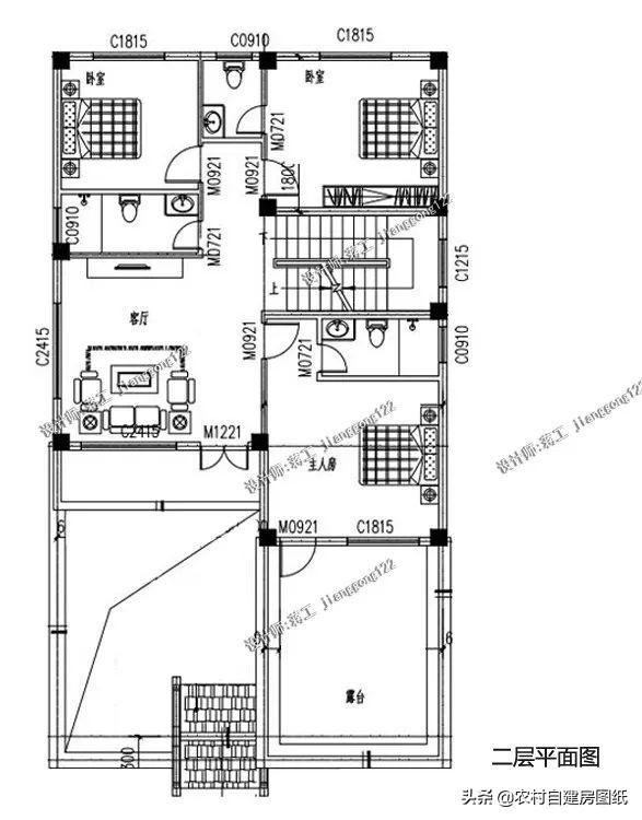
户型三:

编号:3364
结构形式:框架
建筑高度:10.7m
占地尺寸:9.7m×17.1m
占地面积:110.89㎡
建筑面积:267.73㎡
室内布局设计:


这是这三款别墅中唯一带车库的,然后就是菜园的设计,在农村一般都是散居,大部分蔬菜都是自己自足,所以菜园的设计刚好满足了这一点
转载请注明出自轩鼎别墅设计://www.lemeizhai.com/ |