现在农村都建别墅,这在以前想可是都不敢想的事情,但现在农村可以很快的建一套别墅,很多老人家都说现在生活条件好,自己也是赶上了好时代。当然还要做子女的孝顺,愿意给建这么漂亮的房子。今天这款别墅是12.56×13.72米的建房尺寸,占地面积162.71平方米,建筑面积889平方米,框架结构,墙面装饰主要用黄色真石漆涂料等,大门处未使用罗马柱,造型简单精致。

屋面使用的是很常见的青色琉璃瓦铺装。

一层布局图:设有一室两厅一厨两卫,室内布局上也是一目了然,很多人也会说,农村自建房室内布局看来看去都是那样,那城里住宅又何尝不是呢?满足基本的生活需要而已,总不能变朵花出来吧。

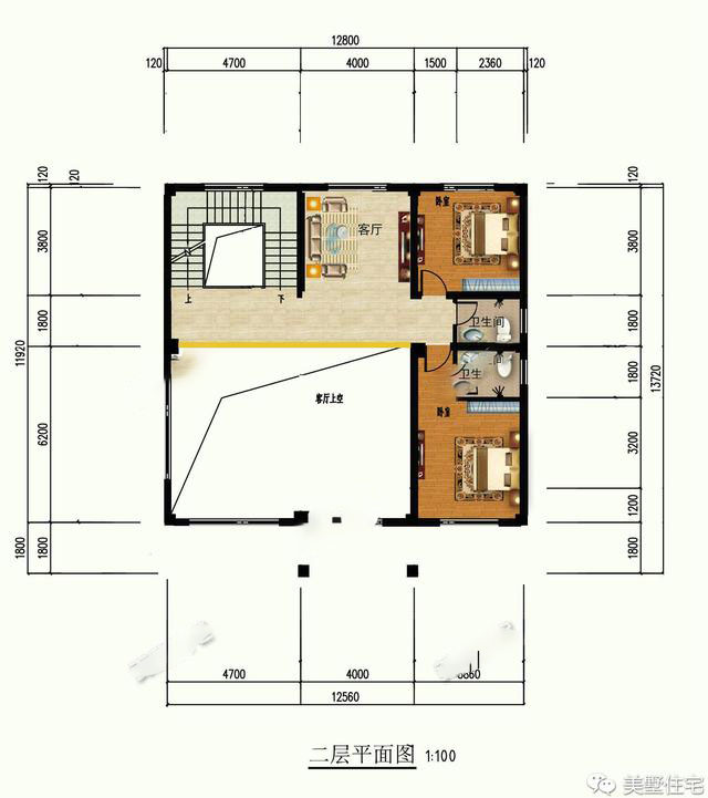
二层布局图:配有两室一厅两卫。

三层布局图:和二层是差不多的,多一个卧室、活动区,客厅位置发生了小改变。

四层布局图:配有一室一厅,外设观景露台。
转载请注明出自轩鼎别墅设计://www.lemeizhai.com/