农村建别墅不仅要实用,还要有品位。现在不比从前了,建房已不仅仅是满足基本的需求了,更多是要更加舒适的居住环境。有钱了,也不怕花钱了,现在的生活条件这么好你就不想建别墅?建别墅是要建的,但也要客观的看待建别墅,不能盲目跟风。今天这款特别有品味的别墅希望你喜欢。
效果图:

别墅信息:
编号:XD2193
结构形式:砖混
占地尺寸:14.7m×11.1m
占地面积:158.88㎡
建筑面积:376.11㎡
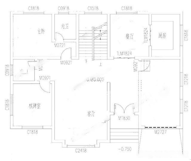
室内布局设计:

一层:客厅,棋牌室,车库,餐厅,厨房,内卫,主卧入户即为玄关,玄关在这里起到了一定的隔断作用,使室内空间具有一定的神秘感。紧接着就是挑空大客厅,客厅的窗户是挑空落地窗的设计,采光面大,使整个空间看起来更宽敞,更舒适,西北角的卧室适合做为老人房,附带内卫方便老人的日常起居。

二层:2露台,卧室,公共卫生间,主卧(附衣帽间,内卫)
转载请注明出自轩鼎别墅设计://www.lemeizhai.com/