今天给大家推荐一款价格非常亲民的三层简欧别墅,这款别墅是一款十分漂亮的三层别墅,这样的别墅已经很精致了。有钱就建跟别人不一样房子,别墅比小平房更实用。这样雅致的三层别墅你们喜欢吗?

效果图:



别墅信息:
参考造价:39-46万
占地面积:139平方米
建筑面积:376平方米
开间12.5米,进深11.5米
砖混结构,建筑高度12.087米
别墅细节图:


别墅屋顶是蓝色西班牙瓦,外墙以米黄色和白色真石漆搭配,墙角是浅蓝色瓷砖,霸气的罗马柱,精致的花瓶围栏。
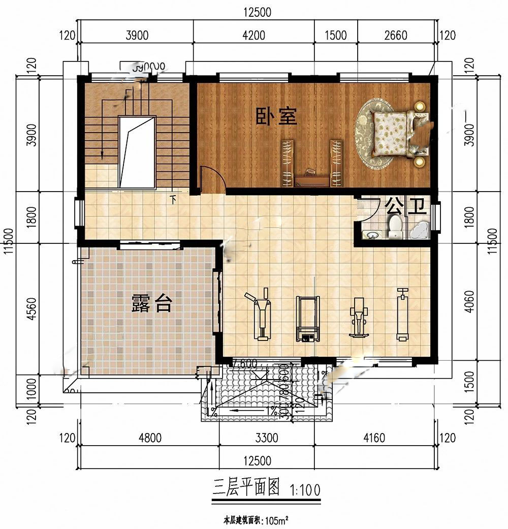
平面布局图:

一层:客厅宽敞明亮,方便接待亲友;餐厅、厨房在后,布局合理,用餐便利;1个卧室,可做老人房,居住方便。

二层:3个卧室,布局舒适,独立衣帽间;客厅温馨,促进家人之间的感情。

三层:1个卧室,是套房设计,干净宽敞;开放式健身房,休闲锻炼,放松身心;露台采光通风极佳,可晾晒衣物,也可打造成空中花园。
转载请注明出自轩鼎别墅设="://www.lemeizhai.com/" _src="://www.lemeizhai.com/">://www.lemeizhai.com/