其实房屋太过奢华没必要,实用即最好,外表好看的不一定是实用的。有钱了就要给家人最好的,不要总是操劳奔波不顾及家人的感受,建套好房子,好好陪陪家人,一家人永远在一起,其乐融融的。
效果图:

别墅信息:
造价:37-43万
占地面积:112.5平方米
建筑面积:358.45平方米
开间9米,进深17.28米
异形框架结构,建筑高度16.144米
别墅细节图:


别墅屋顶用的是红色西班牙瓦,外墙主要是用黄褐色外墙砖装饰,在别墅的棱角处用的是咖啡色文化石做点缀,整体看起来非常鲜明,艺术感十足。
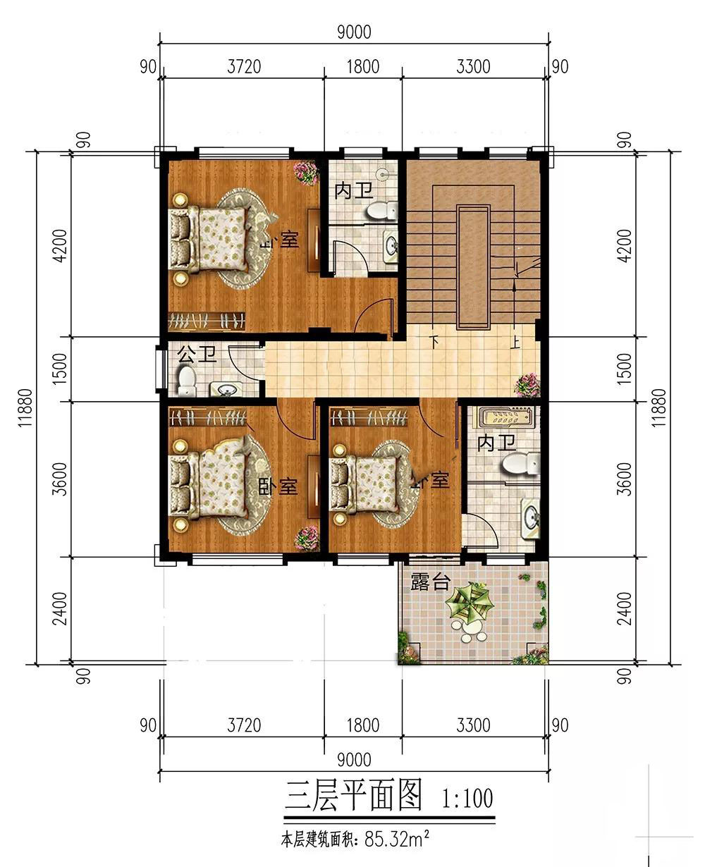
平面布局图:

一层:入门是庭院,庭院内可种植风水树之类的做装饰,提升家居风水财运;设有一间卧室和公卫,可做老人房,方便老人起居;入正门见客厅和餐桌,家庭氛围好;厨房和客厅隔开,避免油烟;设有车库,便于泊车。

二层:挑空客厅,室内空间宽敞明亮;设一间卧室和公卫,做主卧,供屋主人居住;客厅方便家人坐在一起闲谈,促进家庭成员感情;茶室可做待客使用;露台可以用来种花,观景。

三层:3个卧室和3个卫生间,家人居住便利;露台可用于观景。

四层:卧室有余可做客房;棋牌室可用在工作之后做休闲使用;露台可用来晾晒衣物。
转载请注明出自轩鼎别墅设计: ://www.lemeizhai.com