关于农家田园的诗词有很多,文人墨客也有很多描写乡村生活的诗句。在现在社会,能有一个安逸的居住环境是一件多么幸福的事,很多人都向往那种安逸的乡村生活,有钱就要有舒适的居住环境,在农村建房已经是非常普遍的事情。今天小编推荐一款新中式别墅,农村建房就选中式别墅,没有理由。
效果图:

别墅信息:
参考造价:28-37万
占地面积:120平方米
建筑面积:252平方米
开间13.76米,进深12.26米
框架结构,建筑高度10米
别墅细节图:


屋顶是青色波形瓦,外墙以白色真石漆为主,墙角采用青灰色外墙砖,多窗多露台,采光通风效果佳。
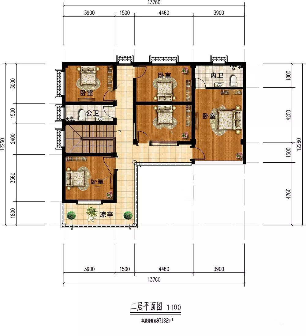
平面布局图:

一层:设庭院,闲时喝茶养花种菜,悠然惬意;客厅温馨紧凑,家人相聚;3个卧室居住舒适;茶室提升家居格调;厨房和餐厅单独建造,隔离油烟。

二层:5个卧室,布局紧凑,主卧设有内卫,干净方便;一个凉亭,清凉舒爽,可赏景,也可晾晒衣物
转载请注明出自轩鼎别墅设计:="://www.lemeizhai.com" _src="://www.lemeizhai.com">://www.lemeizhai.com