我很羡慕有宅基地的朋友,因为能建别墅。生活不易能让自己跟家人过得舒舒服服就已经很不错了,人干嘛活的那么累呢?该享受的就该享受。农村建房就是让自己过的更好,每个人都有向往美好生活的权利。让生活变得更好,那就建别墅吧。今天推荐一款简约风格的欧式别墅,来看看效果图吧。
效果图:

别墅信息:
参考造价:36-47万
占地面积:119.55平方米
建筑面积:327.17平方米
开间11.38米,进深12.16米
框架结构,建筑高度12.888米
别墅细节图:


别墅屋顶是蓝色波形瓦,外墙以黄色真石漆为主,墙角使用仿石材外墙薄板瓷砖,精美的檐线与腰线,充满欧式风情的花瓶围栏和山花,经久不易过时。
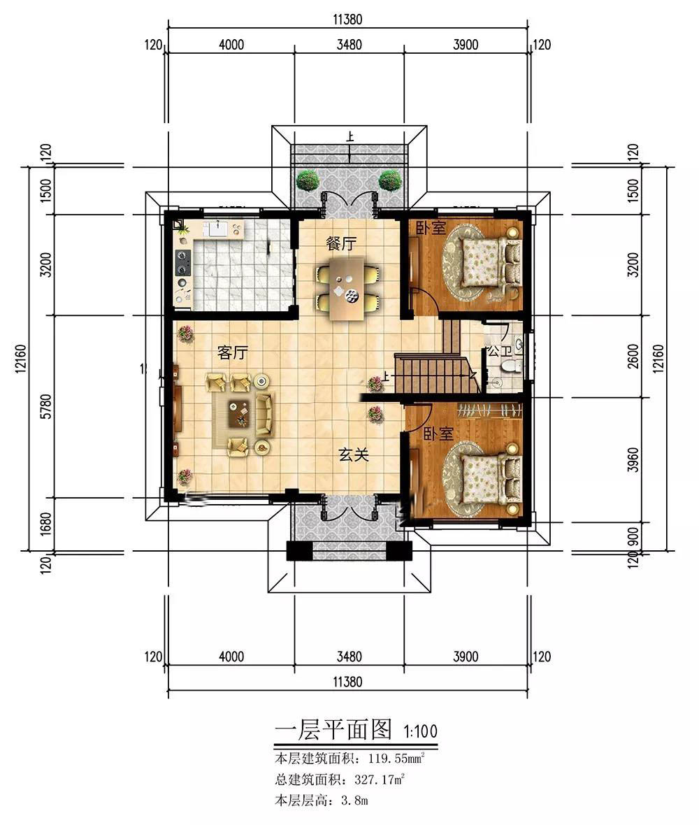
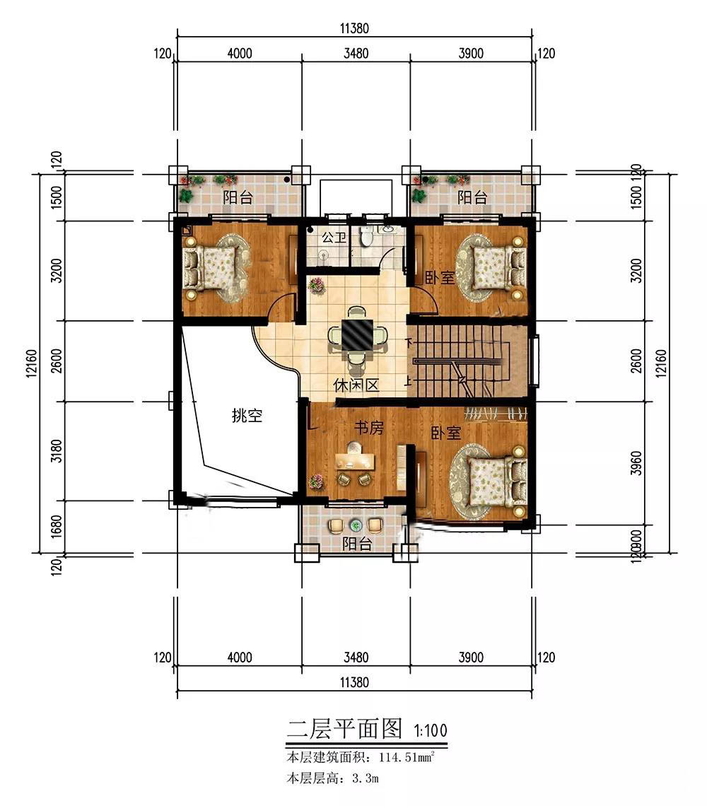
平面布局图:

一层:入户玄关,连通客厅,空间宽敞大气,接待亲友倍有面子;餐厅外还设一个休闲平台;2个卧室,靠近卫生间,起居便利。

二层:挑空客厅,室内空间更加开阔明亮;3个卧室均带有阳台,主卧另带有书房,提高居住舒适度;休闲区设计,为日常生活提供了休闲娱乐空间。

三层:2个卧室,居住有余可留作客房;中间是活动区,另设有影音室和棋牌室,闲时和亲友打打桌球,看个电影,放松身心;4个阳台,丰富的通风采光条件,可以在阳台上喝茶,看书,过悠然的小日子。

隔热层:隔热保温,放置生活水箱,很是实用
转载请注明出自轩鼎别墅设计="://www.lemeizhai.com/" _src="://www.lemeizhai.com/">://www.lemeizhai.com/