有钱的生活是美好的,一分钱难倒英雄汉,没钱是万万不能,有钱治病不用愁,养老也有保障,而且住的也好好。就像这款别墅一样,有钱就能建这么一款。
外墙装修简介:
别墅屋顶是蓝色西班牙瓦,外墙以米黄色真石漆为主,小罗马柱装饰窗户,配上大气的梁托、精致的浮雕和通透的落地窗,使得别墅整体看起来富贵、奢华。
效果图:

别墅信息:
参考造价:60-75万
占地面积:143平方米
建筑面积:572平方米
开间13米,进深12.5米
框架结构,建筑高15.329米
别墅细节图:


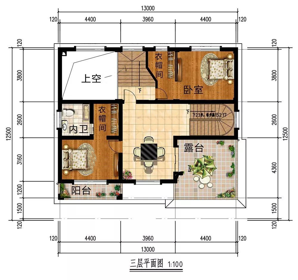
平面布局图:

地下室:健身区、品茶区和影音室,丰富家庭娱乐生活;设有厨房、餐厅,隔离油烟,用餐干净卫生;酒窖,方便珍藏美酒,提升生活格调。

一层:入门玄关,保护隐私安全;客厅宽敞,方便家庭聚会休闲;设茶室,闲暇时品茶看书,陶冶情操;2个卧室,布局合理,居住适宜。

二层:挑空客厅,提升别墅档次,观光厅和阳台连接,方便喝茶,观景;设起居室和书房,方便召开家庭会议;1个带内卫的卧室,方便起居。

三层:设棋牌室,方便家人休闲娱乐,释放压力;2个卧室,大小适中,满足日常生活起居;1个露台,可打造成空中花园,或用于晾晒
转载请注明出自轩鼎别墅设计="://www.lemeizhai.com/" _src="://www.lemeizhai.com/">://www.lemeizhai.com/