城里生活让人们逐渐开始麻木,总有一个石头在心里压着,不得解放,让人喘不过气来。真羡慕农村的田园生活啊!日出而作,日落而息,不用加班的日子是幸福的,没有了巨大的压力,让人身心愉悦。要想以后活的痛快,就要趁年轻加倍努力,先前吃的苦以后会有回报的。今天小编推荐一款舒适的新中式别墅,有钱了就抓紧建别墅吧。
效果图:

外墙装修简介:
别墅外墙以白色真石漆为主,灰色真石漆点缀门窗,屋顶是灰色波形瓦,经典的木质栏杆与镂空窗花,经典不过时,让人体会到浓厚的中式气息。
别墅信息:
参考造价:35-43万
占地面积:183平方米
建筑面积:299.5平方米
开间17.3米,进深20.45米
框架结构,建筑高度9.1米
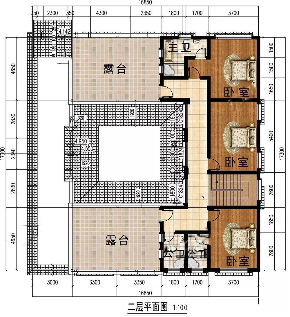
平面布局图:

一层:别墅占地宽敞,内外均设庭院,体现了主人的风雅意趣;设有堂屋,符合中式的传统格局;室内各空间温馨紧凑,家人居住舒适。

二层:为家人打造安静的休息区,3个卧室3个卫生间,满足家人的起居要求;内院挑空,空间光线充足,与自然相结合;2个大露台,可以晾晒衣物,在此欣赏乡村美景,宁静悠然
转载请注明出自轩鼎别墅设计="://www.lemeizhai.com" _src="://www.lemeizhai.com">://www.lemeizhai.com