在农村建别墅,就要建那种简单低调的,一看就十分舒适的别墅,这样的别墅能让人身心愉悦。农村建房实用是根本,外表是其次的,住起来舒服才叫好别墅。今天小编推荐一款现代别墅,这款别墅外观漂亮低调,很是令人满意。
效果图:

外墙装修简介:
别墅屋顶是蓝色西班牙瓦,外墙以白色真石漆为主,深棕色文化石点缀局部墙面,通透的窗户,再配上铁质围栏,现代创意十足
别墅信息:
占地面积:115.8平方米
建筑面积:326.24平方米
开间10.8米,进深13.64米
砖混结构,建筑高度12.623米
别墅细节图:


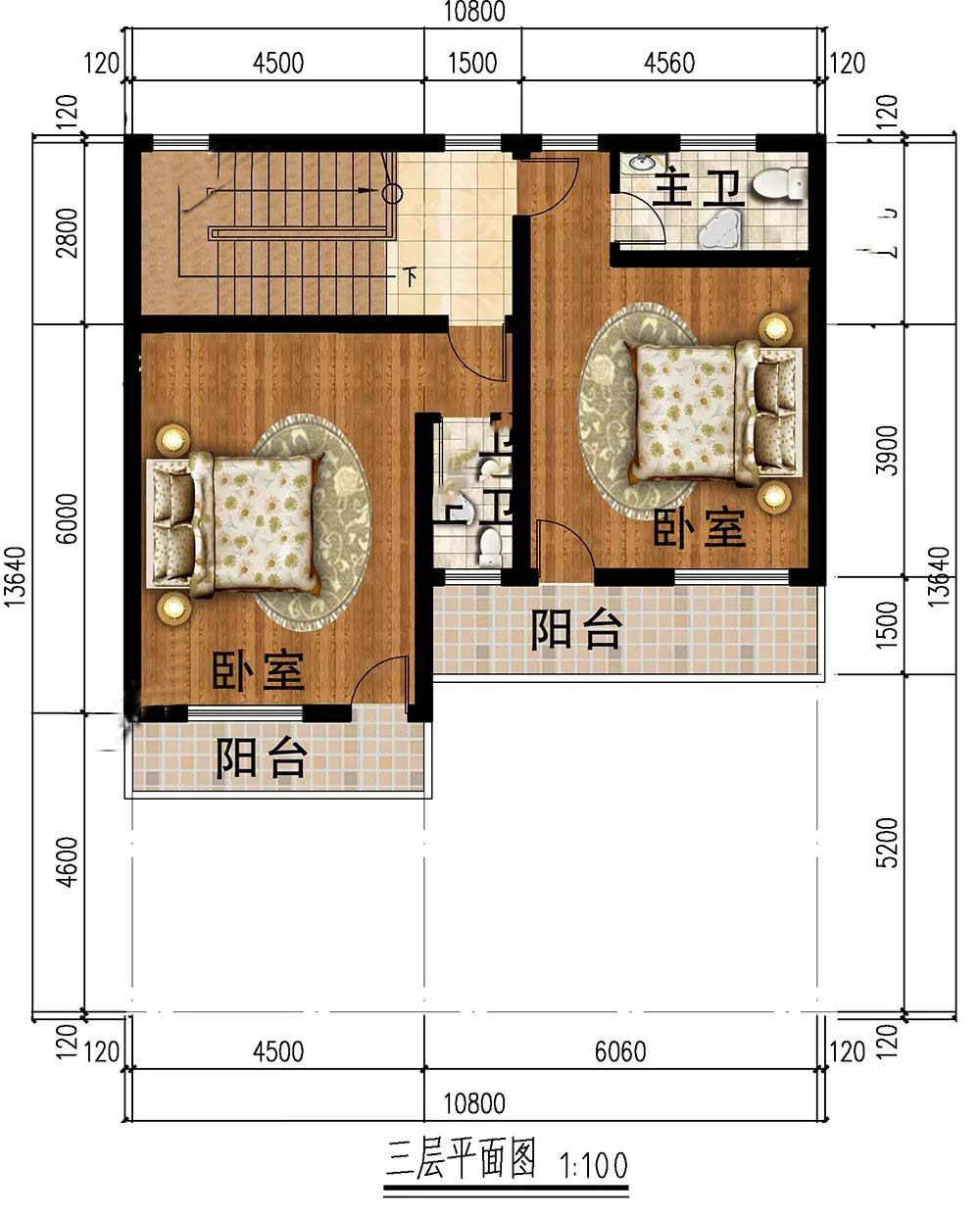
平面布局图:

一层:厨房、餐厅、茶室、客厅连为一体,室内采光通透,活动范围宽敞,还设后门,方便进出。

二层:小客厅连接阳台,采光和观景视野佳;1个卧室连接阳台,居住舒适,闲暇时可以在阳台上晒太阳,或晾晒衣物;设有书房,在此办公学习,不被打扰。

三层:2个带内卫的卧室,布局紧凑,家人居住温馨;2个阳台有利于加强空气流通,自然交互性好
转载请注明出自轩鼎别墅设计="://www.lemeizhai.com" _src="://www.lemeizhai.com">://www.lemeizhai.com