随着自己实力的提升自己的住房条件也要升级,在农村建一栋别墅,很多成功人士都这样,没有跟自己身份标配的房子那怎么行,买房子太掉档次了,现在都是私人订制,想要什么样的别墅随心所欲。
效果图:

别墅信息:
占地面积:132平方米
建筑面积:374平方米
开间13米,进深10.7米
异形柱框架结构,建筑高12.679米
别墅细节图:


别墅屋顶是蓝色西班牙瓦,外墙米黄色真石漆点亮主体,再用金色山花点缀,通透的落地窗,别墅大气又精美。
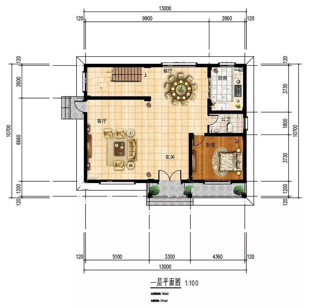
平面布局图:

一层:入户玄关,过渡到宽敞大气的客厅,适合接待亲友;1个卧室临近公卫,方便老人居住;半开放式厨房餐厅,满足一家人团圆聚餐;储物间,方便存储闲置物品。

二层:客厅旁边设有茶室,可供家人休闲娱乐;3个卧室,主卧套房设计,打造出舒适的休息环境;狭长阳台,闲时在此赏景聊天,生活美滋滋。

三层:开放的健身区与棋牌室,满足家人健身休闲;3个卧室,居住有余可留作客房;大大的露台,闲时在此欣赏乡村美景,忘记生活烦忧。

闷顶层:防寒保温,使得室内冬暖夏凉;也可以储存生活杂物
转载请注明出自轩鼎别墅设计="://www.lemeizhai.com/" _src="://www.lemeizhai.com/">://www.lemeizhai.com/