小洋楼建在乡下不仅可以享受到美好的住宿体验,平时可以逛逛看看,在乡间田野体验城里体会不到的事情,看看山上的美景,这别有提多惬意了。假期可以跟好友一吃烧烤举办生日聚会什么的,好了不多说了,今天这款巴洛克风格的别墅喜欢吗?
效果图:

别墅信息:
占地面积:188平方米
建筑面积:493平方米
开间13.9米,进深13.94米
框架结构,建筑高12.368米
别墅细节图:


别墅屋顶是深蓝色西班牙瓦,外墙采用米白色搭配黄色真石漆,精致的浮雕和老虎窗,通透的落地窗,繁复的欧式线条装点别墅,别墅气质雍容华贵,彰显主人身份。
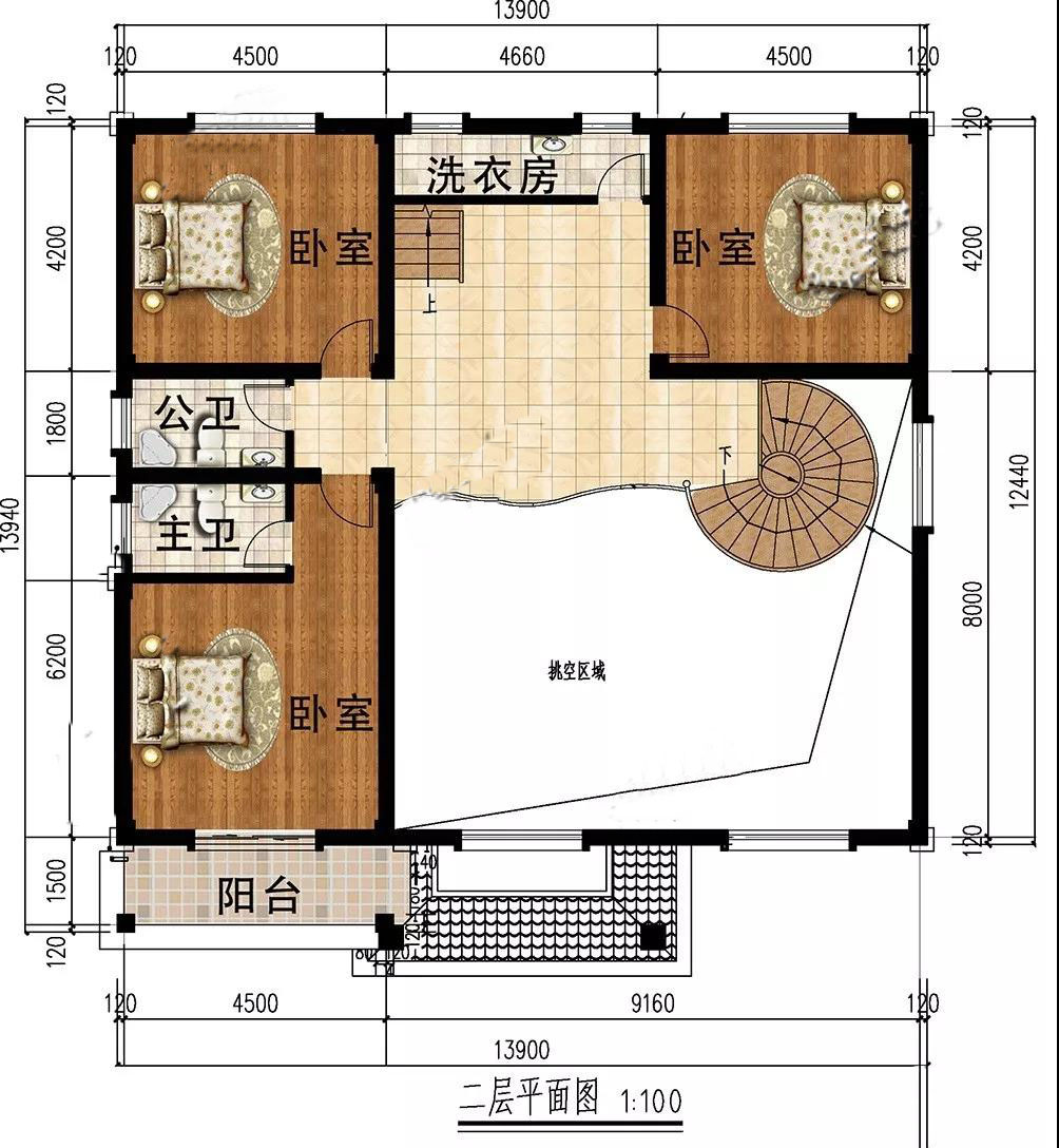
平面布局图:

一层:客厅搭配旋转楼梯,待客面子十足;设娱乐室,方便家人娱乐休闲;1间卧室临近公卫,适合老人居住;半开放的厨房餐厅,满足一家人其乐融融的用餐。

二层:挑空复式楼,彰显奢华大气;3个卧室,主卧套间设计,舒适性极高;小阳台,增强房间采光,闲时可在此喝茶观景;设有洗衣房,方便清洗家人衣物。

三层:3个卧室2个卫生间,满足家人起居需求;大大的露台设计,可以设计空中花园,或者烧烤聚会,享受惬意的农村生活。
转载请注明出自轩鼎别墅设计="://www.lemeizhai.com" _src="://www.lemeizhai.com">://www.lemeizhai.com