别墅的设计:="://lemeizhai.com" target="_self">欧式别墅二层建筑设计,没有豪华装饰,只有简单的大气美景




整栋建筑是欧式别墅,2层建筑,整体颜色也不夸张,搭配简单美观,建筑物立面图的一层采用淡黄色瓷砖,2层采用真白石漆,使建筑物整体水平清晰,线条流畅。 一层浅黄色的瓷砖不仅提高别墅的质感,而且耐脏,所以即使家里有小盆友也不必担心脏。
由于建筑物的整体颜色浅,屋顶灰色,比暗色舒适,不像建筑物那么重。 屋顶是坡顶的设计,不仅可以让别墅看起来更高,还可以解决建筑屋顶积水的问题,两者都很美


楼上有阳台设计,这在农村是不可或缺的。 冬天晒被子的衣服很方便,接下来在阳台上也可以种花草,使别墅整体变得美丽,漂亮地空气。 二楼也采用大型地板玻璃,二楼整体采光非常好。
建筑的大门也采用了欧式的门,和这个别墅一起美丽很感人,大门涂着茶色的涂膜剂,两侧的石柱上有灯,晚上回家也有照明路的夜灯,外观很温暖,大门的中间花样的设计很和美
室内大门入口用三根石柱隔开区域,结构清晰,大门也采用简单的设计,不太麻烦的装饰,突出整栋建筑的简单美观,大门两侧有玻璃窗,使室内更明亮,空气更新,夏天也更凉爽
玄关的两侧种着花草,简单的玄关也有特征,地板采用瓷砖,清扫容易,看起来清洁。




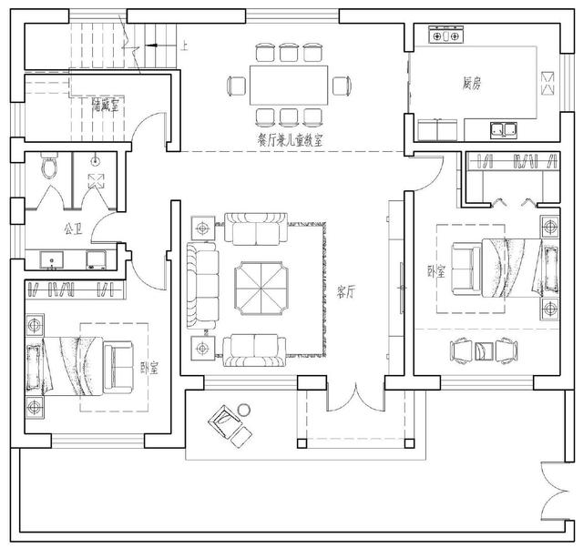
从建筑物的平面效应图来看,可以看出建筑物整体占地面积并不大,即使住宅基地很小也可以考虑。
最后,我们来看一下建筑物的平面设计图



一楼的入口是客厅,方便招待客人,左侧和右侧设计在卧室里。 不仅家里的老人有房间,朋友和家人住宿也没有问题。 临近厨房和餐厅,用餐方便,特色是餐厅两用,也可以作为小盆友教室,非常周到,储藏室设计,房子不会乱七八糟。
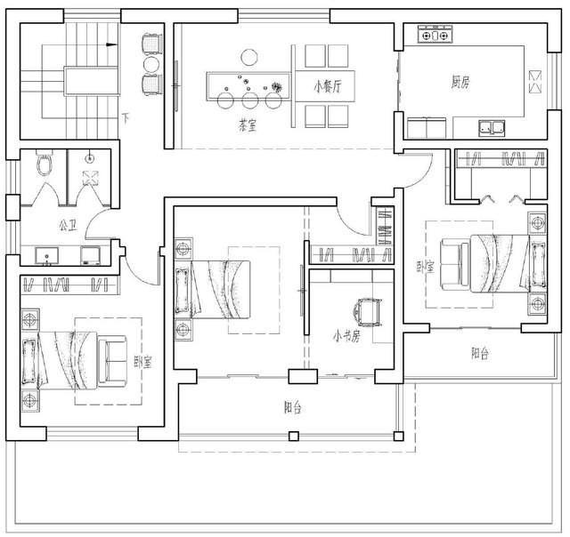
这座建筑的特色,不仅是二楼,而且会做饭,媳妇想在自各儿吃的话很方便,又是三间卧室,满脚丫子了家人的居住,主要有阳台和小书房,住得很舒适。
转载请注明出自轩鼎别墅设计="://lemeizhai.com" target="_self">://www.lemeizhai.com