推荐:4栋="://lemeizhai.com" target="_self">现代简约平顶别墅,是年轻人的首选
别墅设计的风格有很多种,其中最流行的风格有简单的欧式风格、现代风格和新中式风格。然而,近年来,现代风格真的很流行,尤其是年轻一代。其简单时尚的造型最符合当代审美标准。今天,我推荐四个现代平顶别墅的设计和外观图纸,看看有没有你的菜。
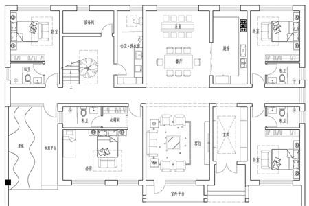
别墅设计一
别墅风格:现代
占地面积:279
估计费用:760,000
别墅楼层:二楼
建筑面积:21.5米13米
建筑面积:501m2
建筑结构:砖混结构





别墅整体为现代风格,整体结构为方形,视觉对称。庭院的设计为居住者提供了足够的活动空间。
院子里设计了两个停车位,方便你停放自己的车,还可以种一些树和花来增加绿化面积。
立面的颜色相当稳定,玻璃元素的使用不仅使整个房子更轻,而且有助于室内照明和通风。
一楼的入口为入口,客厅和餐厅由走廊隔开,便于沟通。这四间卧室满足了生活需要。除了休息空间,二楼还设计有室外露台,增加了居民活动和放松的空间。
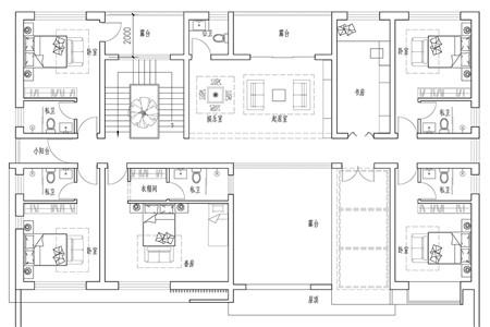
别墅设计二
占地面积:437
估计费用:700,000
别墅楼层:三层
建筑面积:23m19m
建筑面积:750平方米
建筑结构:其他结构



整个别墅采用中式设计,三层结构提供了足够的居住空间。外立面设计不规则,使建筑充满个性。墙上铺的砖与窗户的木质结构相匹配,富有古典韵味。
大露台加强了建筑与环境之间的联系,在你空闲的时候,你可以在这里交朋友。
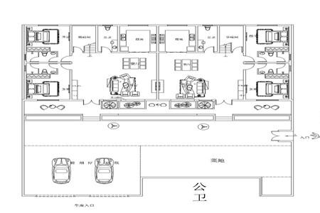
别墅设计三
占地面积:292
估计费用:660,000
建筑面积:24.4米12米
建筑面积:600平方米




该房屋为两层现代风格,立面以白色和木质为主,整体简单大方,充满自然质感。车库、公共厕所和菜园都设计在院子里,非常适合农村生活。
由于双拼法设计,一楼的布局是对称的,入口是客厅和餐厅,厨房是在一个独立的空间,两个卧室可以作为客房。
二楼是客厅,阳光房设计在中间。天气好的时候,你可以坐在这里和朋友一起休闲。
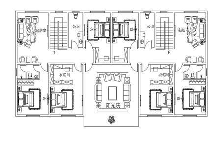
别墅设计四
占地面积:595
估计费用:121万英镑
建筑面积:24.3米24.5米
建筑面积:808m2
该建筑为三层结构,造型奇特,富有设计感,同时使整个房屋更加灵活。




入口处有一个木制平台,二楼有一个室外露台空间,可以作为摆放桌椅后的聚会场所。
除了基本的生活空间,还有棋牌休闲室,满足了娱乐的需要。车库的设计也方便了您自己车辆的停放,提高了生活的便利性。以上四栋平顶别墅简单时尚,正符合我们当代年轻人追求简约的生活习惯。现代风格别墅的另一个优点是它们非常适合低成本的小型住宅,所以我希望每个人都喜欢它们。
转载请注明出自轩鼎别墅设计="://xd7.com" target="_self">://www.lemeizhai.com