这几个="://lemeizhai.com" target="_self">农村建自建住宅的设计图,非常大气实用,简直是理想的居所
城市生活,车水马龙,生活节奏快,无喘息机会,反观乡村生活,安静,地貌景观优美,空气清新。 现在建设了新农村,交通也变得方便,道路连房子的入口都修好了,很多人决定回家乡建房子。 “乡下别墅”一时走红,乡下别墅越来越多,合自各儿、布局合理实用的房子非常重要,接下来的小说有几个别墅,非常大气实用,简直是理想的住处。
方案1 :简单大气乡村二楼自建家
房屋概况:这座别墅第一次看到外观摄影图片就很有魅力,完美地诠释了建筑奢侈,体现了老东家吉卜赛人的心中的感觉。 第一层的设计满足了农村人日常生活的要求,开放式客厅的设计扩大了空间,视觉感知效果更出众,使云同步更能看穿居室
简单的大气乡下的;两层的私人住宅
单纯大气乡村2层住宅残奥表



简单大气乡下的2层住宅的1层平面图
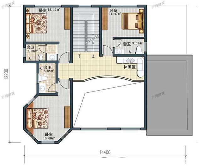
简单大气乡下的2层住宅的2层平面图
情景2 :美丽的乡下的三层大厦摄影图片大全
房屋概况:户型设计简单美观,采用坡屋顶,是农村常见屋顶类型,三楼露台实用性高,可以晾晒,可以欣赏风景,营造创意屋顶花园,营造充满活力的居住环境。 外墙用淡白色真石漆装饰,四面开窗,室内透明采光,施工难度不大,成本不高,特别适合普通农村家庭建设。
有很多漂亮的乡下的三层楼房的摄影图片
美丽的乡下的三层房摄影图片大部分残奥表
美丽的乡下的三层楼房摄影图片全面俯视图



美丽的乡下的三层楼房摄影图片大全二层楼的平面图
美丽的乡下的三层房摄影图片大全三层平面图
方案3 :包括经济乡村民居设施修订图外观图
房屋概况:农村人最喜欢的别墅经济适用,价格低、受欢迎的版结构好。 二楼是农村建得最多的。 这座别墅采用黄色的真石漆外墙,二楼大露台不仅可以享受地貌景观,还可以增加室内采光,户型经典、版结构合理。
经济乡下的民居设计图纸包括外观图
经济乡下的民居建设修订图纸包括外观图残奥仪表




经济乡下的民居建设修订图纸包括外观图平面
经济乡下的民居建设修订图纸包括外观图的二层平面
转载请注明出自轩鼎别墅设计="://lemeizhai.com" target="_self">://www.lemeizhai.com