别墅设计:="://lemeizhai.com" target="_self">二层欧式别墅,没有豪华装饰,只有单纯的大气美景



整个建筑是欧式别墅,共属于二楼,整体色彩也没有夸张的颜色,组合都是简单的美丽,建筑立面图的一楼采用鹅黄色瓷砖,二楼采用真白石漆,使整个建筑更清晰,线条流畅。 一楼的鹅黄色瓷砖不仅提高别墅的质感,而且耐脏,即使家里有小盆友也不用担心弄脏。
因为建筑物的整体颜色浅,屋顶也灰色,比暗色舒适,不像建筑物那么重。 屋顶是坡上的设计,不仅使别墅看起来更大,而且解决了建筑屋顶有积水的问题,两者都很美
建筑物的二楼是有阳台的设计,这在农村是不可缺少的。 冬天晒被子衣服很方便,下面有阳台也可以种点花草,使整个别墅更美,更漂亮地空气。 二楼也采用大型地板玻璃窗,二楼整体采光非常好。



建筑物的玄关也采用欧式的门,与这栋别墅组合起来很漂亮,玄关用茶色的涂膜剂涂抹,两侧的石柱开着灯,晚上回家也有照明路的夜灯,看上去很暖和,玄关的中间花纹的设计意义很美。
室内玄关入口被三根石柱分隔,结构更清晰,玄关也采用简单的设计,不太麻烦的装饰,强调整个建筑的简单美,玄关两侧有窗玻璃,使室内更透明,空气更新,夏天也更新
大门两边种着花草,简单的大门也有点特色。 地面采用瓷砖,便于打扫,看起来像漂亮地。
建筑背立面图效果图




从建筑物的平面图来看,可以知道建筑物整体的占地面积并不大,也可以认为房子的宅基地比较小。
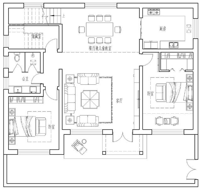
最后,我们来看一下建筑物的平面设计修订图

一楼的入口是客厅,待客方便,左侧和右侧都设计在卧室,不仅家里的老人有房间,而且朋友和家人住宿也没有问题,离厨房和餐厅很近,用餐方便,特色是餐厅两用,还可以作为小盆友教室使用,非常周到


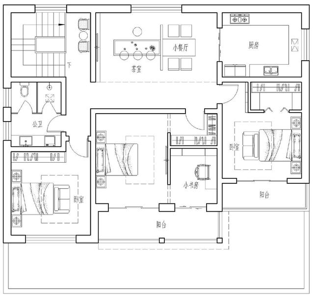
这栋建筑的特色不仅是二楼,还会做饭。 媳妇想在自各儿吃也很方便。 此外,三间卧室,满脚丫子家庭居住,主要有阳台和小书房,居住十分舒适。
转载请注明出自轩鼎别墅设计="://lemeizhai.com" target="_self">://www.lemeizhai.com