2套="://lemeizhai.com" target="_self">农村小型经济实用型别墅建设图纸,1栋2层1栋3层附有停车库
这是一栋2层的别墅,占地面积也不太适合宅基地受到限制的朋友,2层有阳台,增加了娱乐结账台功能。 看看效果图和使用功能。
看起来还漂亮地,只有二楼。



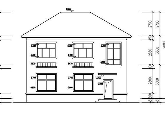
以下是立面图





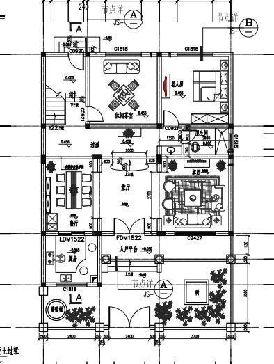
一楼的版结构,大家都看不适合你。
二楼平面图
现在,这是一个3层的户型,停车库,3层有露台,阳台。 看看效果图,不知道大家喜欢不喜欢。



请看立面图的详情






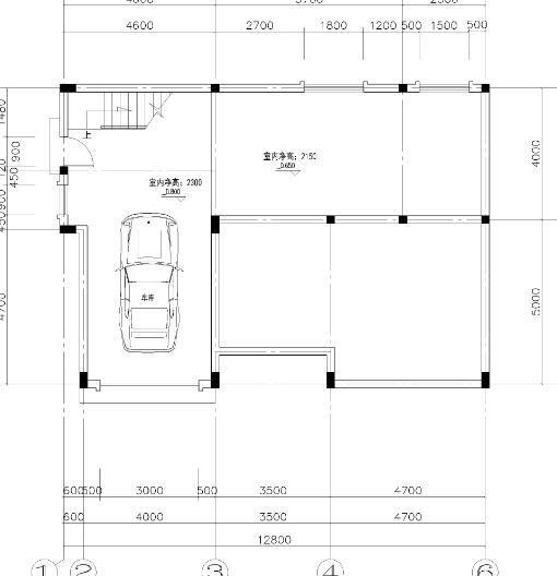
一楼大小面积
一阶户型版结构平面
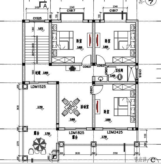
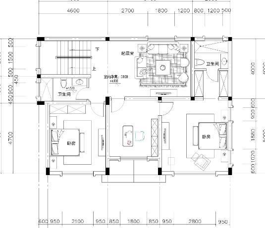
二楼平面图
三楼的平面图,大家都可以参考。
现在建造套房也不容易,找到适合自各儿的也很难。 希望这些个户型能为大家提供参考,有助于你盖房子。
转载请注明出自轩鼎别墅设计="://lemeizhai.com" target="_self">://www.lemeizhai.com