="://lemeizhai.com" target="_self">二层欧式别墅,简单大方,现代人重视简单美



基本信息
建筑面积: 297
基地面积: 426
建筑尺寸: 14m11.8m
占地面积: 160
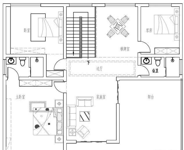
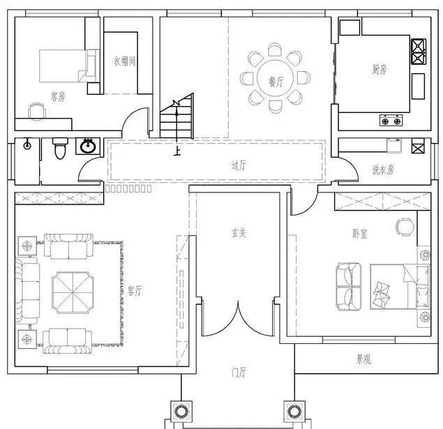
户型概况: 5室3厅3卫1厨1洗涤1帽子1棋牌
砖造建筑结构
土建参考成本: 44万元(室内装修费用除外)
别墅设计:二楼欧式别墅,庭院大,功能齐全,这就是梦想之家
整个建筑是欧式别墅,主体结构是砖结构。 因为是欧式的,所以建筑的形状比较简单,给人以简单而大气的美。 业主喜欢简单的别墅,我觉得欧式别墅建在农村很时尚。
建筑平面图



建筑连带庭园占地面积大,建筑颜色组合比较简单,立面底部选用文化石以上真石漆组合建筑更稳定,相近颜色视觉感知也非常舒适。 二楼欧式别墅,简单大方,现代人重视简单美。
屋顶选用欧式四坡屋顶,水滴飞溅的部分为白色,使屋顶的范围更加明确。 在云同步,水滴保护外壁,建筑的日常维护也变得容易。
院门与东侧邻居的院门相对,简单大方的铁元素艺院门与整体建筑十分配套。 院内的植物为了简洁的墙壁用漂亮地装饰,使建筑更加美丽。



一楼入室是大门,右侧是大客厅,方便招待客人。 左边是卧室,朝阳的设计,家里的长辈可以住。 客厅后面有观众席,方便朋友和家人住宿。


二楼有三间卧室,主卧有独立的厕所,为业主自己居住,有一定的隐私权。 另外,客卧也是必须的,阳台的功能也变得丰富多样化,不仅可以晒衣服,也可以用于小伙伴的聚集。
转载请注明出自轩鼎别墅设计="://lemeizhai.com" target="_self">://www.lemeizhai.com