农村地区="://lemeizhai.com" target="_self">二层带车库的自建房屋设计图既省钱又大气
许多农村朋友在建房时都在努力保持车库。事实上,车库对于农村地区的自建房屋来说是非常实用和必要的。农村地区的房屋是多产的。即使你现在没有车,车库也可以用来存放农具和食品杂物,所以只要有足够的宅基地,就有必要保留车库。

建筑宽度:14.10米;建筑深度:12.40米;建筑面积:321.40平方米;建筑层数:地上2层;建筑高度:檐口6.9米至屋顶9.7米;建筑结构:砖混结构
即使在农村地区,车辆基本上是家庭的标准,所以有必要设计一个室内车库来保护和存放你的车在这个农村自建的两层楼。设计简单大气,没有复杂的装饰,但没有缺乏细节,简单不简单。外墙淡黄色真石漆以暖色为主色,配以局部黄棕色腰线和飞檐窗盖,非常和谐,看不厌。

深蓝绿色的坡屋顶展现了别墅的雅致气质,与墙壁的颜色相协调。宽敞的门厅简单而大气,带有强烈的仪式感。二楼有一定面积的室外露台,增加了家庭的户外活动空间,开放性好。
大楼后面的窗户面积很大,保证了整个房子的透明度和采光性能。车库西侧还有一个侧门,方便运输物料,也可以作为停车的入口。每个细节都为业主提供了极大的方便。
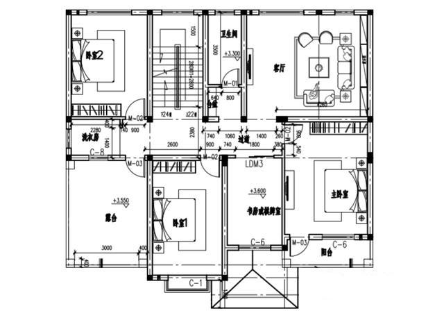
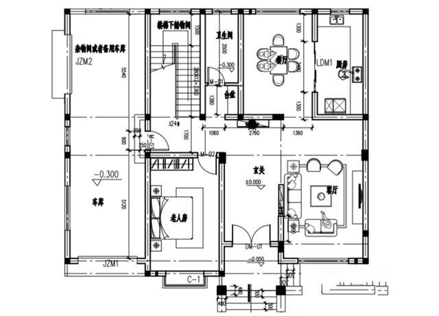
建筑的平面图

入口的入口设计过多,便于存放鞋子和衣服。从入口进入客厅后,也增加了客厅的私密性和空间。如果你喜欢宽敞开放的客厅,你也可以打开入口的墙壁。独立餐厅毗邻厨房,方便用餐。这种设计也更好地避免了油烟进入公共空间。为了给家里的老人提供方便,在一楼的南面设计了一个老人房间,门口有一个卫生间非常方便。大楼的西侧是一个双层车库,南北通透。内部车库可用作停放或存放家用物品的备用车辆。车库设计在西边,以避免客厅在西边干燥的麻烦,但是甚至车库设计有窗户,以避免潮湿。


二楼平面图
二楼主要是接待家庭休息和居住的空间,东北角有一个宽敞的客厅,比一楼更私密,可用于家庭娱乐和聚会。有三间卧室,两间朝南,一间朝北。主卧室有一个阳台。此外,还设计了一个小书房,可以用于主人的办公室或孩子的写作,非常安静。走廊的西端有一间洗衣房,所谓一丝不苟。户外户外提供户外休闲空间,方便干燥。
图纸目录:
建筑图纸:建筑设计总说明、房间装修参考材料清单、建筑施工实施表、一楼建筑平面图、二楼建筑平面图、坡顶建筑平面图、门窗表、门窗详图、前立面图、后立面图、左立面图、右立面图、建筑测量与剖面图、室外台阶详图、阳台线详图、屋顶节点图、外墙腰线详图、综合外观效果图结构图:结构设计概述、一楼结构平面图、基本详图尺寸及配筋表、一楼柱平面图、二楼柱平面图、一楼结构梁配筋图、二楼结构梁配筋图、天花板梁板配筋图、折叠梁配筋详图、坡屋顶折叠板配筋详图、二楼板配筋图、三楼板配筋图和楼梯详图;
给排水图纸:给排水设计说明、管道安装要求及设计要求表、一层排水示意图、二层排水示意图、屋面排水示意图、一层给水示意图、二层给水示意图;
电气图纸:电气设计说明、设备材料清单、配电系统图、一楼照明示意图、二楼照明示意图、一楼照明插座布置、二楼照明插座布置、一楼高压插座布置、二楼高压插座布置。
这套方案图纸外观简单,内部布局合理,功能齐全,所谓内外兼修,设计精良。最大限度地降低了施工成本,主要成本只有20万元左右。
转载请注明出自轩鼎别墅设计="://lemeizhai.com/" target="_self">://lemeizhai.com