2020年="://lemeizhai.com" target="_self">农村新别墅设计图,占地160平方,成本40万美元
推荐占地面积约160平方米的豪华大气三层别墅图。 外观采用欧式经典风格设置修订。 外立面以咖啡色大理岩为基础,组合黄褐色乳白色之间的板砖墙,部分配合欧式经典罗马造型柱与水瓶外壳,色彩调和,营造大气。 深蓝色的斜坡屋顶在别墅加上雅气稳定的效果,细节部分都被修订的天衣无缝,是玛星空卫视的经典作品。
别墅宽度: 13.4m米
别墅深度: 12m
占地面积: 160.8m米
总建筑面积: 448.36m米
建筑层数:地面3层
建筑高度: 11.9m (1层4.2m,2层3.5m,3层3.5m )
结构形式:框架建筑
鸟瞰效应图



本方案不仅注重别墅的外观效果,不仅造型整齐,对居住舒适空间的建构也很雄辩,每层都有开放式阳台的设计,三层更大面积的露台为家庭提供了户外娱乐的结账台空间。
别墅的背面依然沿袭着正面的整体风格,但更简洁、窗面积大,任何房间的采光都非常好。



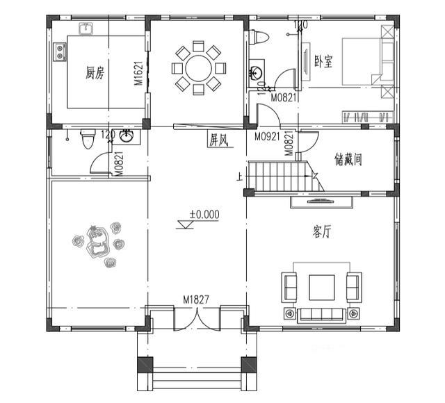
第一层强调空间的广度和开放性,进入先进堂堂,与餐厅之间有屏风的隔阂,注重饮食空间的隐私权,堂堂左侧为结账台区右侧为客厅,空间相互连通,显得非常明亮。 客厅更是二层高的设计,接待客人是更豪华的大气。 一楼北侧有带内卫的卧室,安静舒适,可以作为老人的房间。
双层平面图
二楼是主要起居空间,修订了三间卧室。 饶有兴致建筑物左侧的茄克衫,卧室朝南,内置了步行式的衣帽间,书房和独卫。 北侧有阳台,该茄克衫南北通透采光好,主要制作人员极为舒适的居住空间。 两个二次卧铺的入口是公共卫生,很方便。 中间有一个客厅,一个小聚会用于自各儿,朝南有一个阳台。
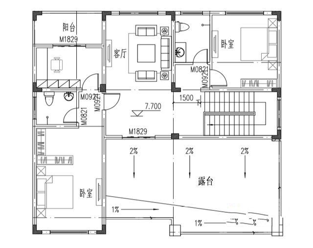
三层平面图
左侧也同样有1定径套的卧铺,配置和二楼主卧铺一样,详细情况不得而知。 一个接一个地睡在建筑物的东北犄角旮旯,中间有起居室。 建筑物东南部有大面积的室外露台,可以在这里种植花卉的绿色植物,是放松心情家庭结账台娱乐的好场所。
图纸格式计程仪:
建筑图:建筑设订总说明、室内装修构造表、一层平面图、二层平面图、三层平面图、闷葫芦平面图、屋顶平面图、1-6轴立面图、6-1轴立面图、A-G轴立面图、G-A轴立面图
构造图:构造设订总说明1~4、基础平面图、基础详图、基础顶~4.200柱施工图、4.200~屋顶柱施工图、柱表、地梁施工图、一层顶南朝梁施工图、二层顶南朝梁施工图、颓顶梁施工图、屋顶梁施工图、屋顶梁施工图供排水:供排水设施修订说明、污水系统图、给水系统原理图、厕所供排水大样本图、1~3楼供排水平面图、和谐供排水平面图、屋顶供排水平面图、污水处理厂大样本图
电图:建筑电气设施修订说明及图例、配电系统图、一~三层照明平面图、屋顶里层照明平面图、一~三层套接口平面图、屋顶里层套接口平面图、防雷平面图、接地平面图、一~三层通讯平面图。
转载请注明出自轩鼎别墅设计="://lemeizhai.com" target="_self">://www.lemeizhai.com