分层色彩的="://lemeizhai.com" target="_self">两层乡村别墅对称、简洁、独特、时尚

两层色彩的乡村别墅对称、简约、独特、时尚!
大家好,我是小安。众所周知,农村地区发展迅速。看着现在农村自建的房子,它们变得越来越漂亮,有着强烈的设计感和完整的视觉。那些单调的乡村红砖房即将成为历史。取而代之的是,越来越多设计独特、外形美观的别墅正在建造房屋。盖房子就像生活,有计划的生活是完美的,有计划的盖房子是独一无二的。下面的小安会带你去看,两层色彩分层的简单独特的别墅。
渲染


正面外观的阳台与罗马柱的结合,不仅强调了别墅整体的优美氛围,也很好地强调了建筑整体的统一性,上层涂料和下层文化石的色彩层次感,加上深蓝色琉璃瓦的斜屋顶,结构鲜明,别墅开了更多的窗户,在保证采光和通风的情况下,扩大了视野,使别墅整体更加实用。
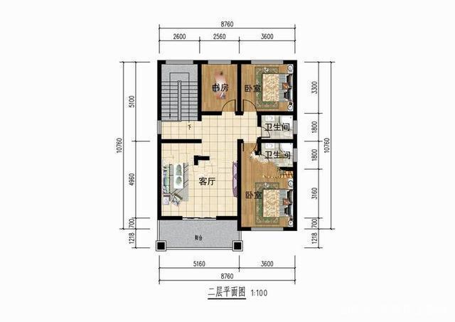
层数:两层结构:砖混结构主要造价:23-27万间:11.3米深:12.6米建筑面积:152平方米建筑面积:335平方米
在一楼,客厅的内部结构与门厅相结合,门厅设计有多个窗户,透明且通风。你休息的时候也可以看看窗外的风景。旁边还有两个房间,卧室里有一个私人浴室和一个公共浴室,方便家庭使用。厨房与餐厅相连,更好地利用了空间结构。
除了三间卧室,二楼还有一间儿童房。茶馆的设计有利于增进人们的友谊,提高他们的社交能力,陶冶他们的情操。蓝色的道路和平台不仅满足了农村地区日常生活的干燥需求,也是亲朋好友的绝佳去处
二楼的新农村别墅是一个大的,图片是无忧,好房子,好价格!
我从来没有想过在我的家乡有一个家园是多么幸运。当时,很多人都想尽快把户口搬到城里,这样既方便买房,又方便孩子上学。但是现在申请农村宅基地也需要农村户口。搬出去很容易,现在搬回来就不那么容易了。因此,如果你有一个家园,如果你看到一个好的公寓类型,你应该迅速去建立它。现在小安推荐一栋两层的新农村别墅。让我们看看!
渲染

前阳台和罗马柱的结合不仅使整个别墅美观,而且强调了整个建筑的统一性。上层米色绘画和下层黄色文化石色彩层次感的结合,加上朱红色琉璃瓦斜屋顶和罗马柱,不仅使整个别墅美观,而且强调整个建筑的统一性,使结构鲜明,米色栏杆与红色大门相匹配,清新美观。欧式风格和现代简约元素完美结合,打造出整个别墅。一楼的客厅有一间卧室(带浴室)和一间公共浴室,可供老人和孩子使用。四周有许多窗户,有利于室内照明和透明的室内布局,简单紧凑,使用方便


二楼有一个自习室,相对安静,有独立的工作和学习环境,让孩子们可以及时查阅或复习书籍。有一个阳台和大量的休闲空间。
转载请注明出自轩鼎别墅设计="://lemeizhai.com" target="_self">://www.lemeizhai.com