="://lemeizhai.com" target="_self">三层乡村别墅设计,全新中国外观效果图,封面和村长的房子一样漂亮



为了生活和理想,我们每天都在喧闹的城市里旅行,但偶尔的停留会让我们想,我们真的想要这种生活吗,它真的快乐吗?也许我们村子里的家乡跟不上潮流,它古老而质朴,但那是我们的根!
住在乡下,可以感受到“春暖花开,秋月花开,夏凉风,冬雪”的美。它可以让人放下所有的烦恼,笑看风,看云,听听鸟语花香。
毕竟,我们不能没有家乡,因为它承载着从童年到长大的一切。回家,建一座属于我们自己的别墅!
农村别墅建筑的特色在于外观之外的意境美,不仅美观,而且居住舒适。
因此,边肖将与你分享如何在农村建造别墅。
编号J2485



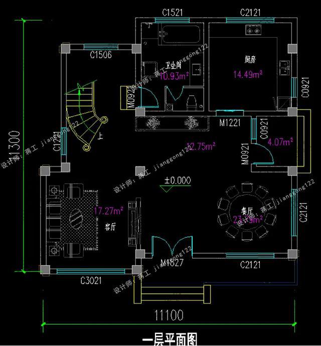
占地面积:10.34米22.24米
面积:174.15平方米
建筑面积:266.3平方米
结构类型:砖混结构
主要成本:220,000至280,000
转载请注明出自轩鼎别墅设计="://lemeizhai.com" target="_self">://www.lemeizhai.com