120平方米的="://lemeizhai.com" target="_self">农村三层楼房设计,建造了20万个主体,邻居们纷纷效仿



近年来,许多人选择在农村地区建造房屋,不仅是那些原来住在农村地区的人,而且住在城市多年的城市人也选择在农村地区建造房屋来实现他们的田园梦想。事实上,这很容易理解。众所周知,城市商品房的价格正在上涨,在一、二线城市甚至达到1000万元,这是普通家庭难以承受的。在农村地区,只有几十万人可以拥有带院子的别墅,其性价比是可以想象的。
边肖今天向你推荐的是一幅经济型三层别墅设计图。每层都有一个露台,既舒适又舒适。
这个位于农村地区的三层120平方米房屋的设计图和效果图占地面积为123.50平方米,建筑面积为319.10平方米。现代风格的设计稳定而大气,二楼和三楼有大型室外露台,实用、美观、开放。
建筑面积:宽10.5,深13.2
主体结构:砖混结构
层数:地上三层
建筑高度:13米



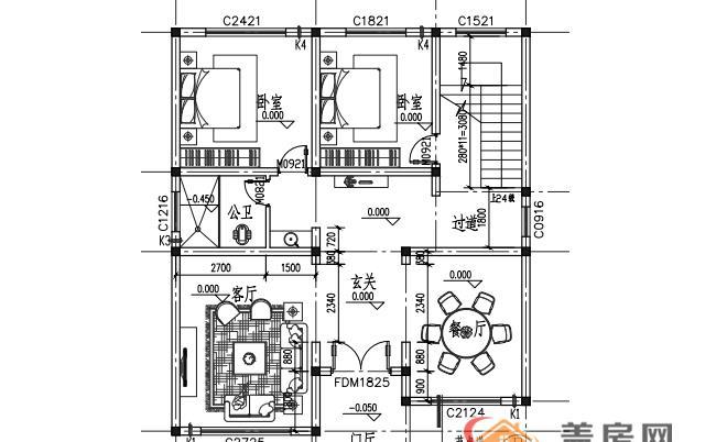
一楼占地123.5平方米。设计功能:2间卧室,公共安全,客厅,门厅,门廊,餐厅和过道
二楼占地面积107.1平方米。设计功能:3间卧室,书房,公共卫生,过道和露台
三层楼建筑面积为88.5平方米。设计功能:2间卧室,公共浴室,过道和阳台
图纸目录:

建筑图纸:建筑设计总说明、建筑结构总表及做法图集、一楼建筑平面图、二楼建筑平面图、三楼建筑平面图、屋顶建筑平面图、门窗表、墙面泛光详图、阳台线详图、窗盖剖面图、窗盖平面图、室外台阶详图、轴向立面图、门楼尺寸图、剖面立面图;
结构图:结构设计总说明、基础平面参考图、配筋图、柱平面布置配筋图、二楼梁配筋图、三楼梁配筋图、阁楼楼梁配筋图、屋面板配筋图、坡屋顶折板配筋详图、结构楼板配筋图和楼梯结构示意图;
电气及电气图纸:电气设计说明、配电系统图、一楼高压插座布局、二楼高压插座布局、三楼低压插座布局、三楼低压插座布局、一楼灯光控制开关布局、二楼灯光控制开关布局、三楼灯光控制开关布局。
排水图:给排水设计说明及图例、一层生活给排水示意图、三层生活给排水示意图、屋顶层生活给排水示意图、生活冷水管道系统图、排水系统图、污水系统图、雨水系统图、生活热水管道系统图。
转载请注明出自轩鼎别墅设计="://lemeizhai.com" target="_self">://www.lemeizhai.com