一亿多人可以在农村地区建房。这两个="://lemeizhai.com" target="_self">简单的两层楼设计会让你满意的
在农村,有许多普通家庭住了几十年的老房子,从舒适和安全的角度来看,不适合居住。新房子很难转手,普通家庭买不起几千万甚至上百万的房子。事实上,许多人怀疑一所房子能在100多年后建成。答案绝对是肯定的。下面的小系列推荐两个简单的两层建筑,主要成本只有20万。
第一款:普通二层建筑,建筑面积87平方米:建筑宽度:7米建筑深度:12米建筑面积:87.26平方米建筑面积:167.20平方米建筑层数:地上二层阁楼建筑高度:檐口7.1米(一层3.8米,二层3.3米)至屋顶9.35米。结构形式:砖混主要造价:15万元
本图采用一栋普通农村两层小户型建筑的设计图,宽7米,深12米。该方案具有外观简单实用、成本低、农村施工简单易行、无技术门槛等特点。共有4间卧室,适合一个普通的三代家庭。主体工程造价约为13万元,不包括人工费和室内装修费。
建筑的平面图

正门朝南,有一个门房和宽敞的客厅。北侧有一间老年房,与厨房和餐厅相邻,有一个很大的用餐空间,可容纳10人一起用餐。卫生间位于大楼的中间,使用方便。
二楼平面图



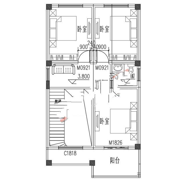
二楼是主客厅,有三间卧室,一间朝南,两间朝北,光线充足。中间还有一个小客厅。整体布局简洁实用,空间利用率极高。对于一个面积不到90平方米的家庭来说,这是非常实用的。
阁楼平面图
阁楼上有容纳人的空间。你可以用方便的梯子爬上阁楼作为一个家庭的储物空间。
图纸目录:

建筑图纸:建筑设计和施工说明、工程实践、一楼平面图、二楼平面图、阁楼平面图、屋顶平面图、东南和西北立面图、剖面图、门详图、节点详图、门窗详图;结构图:结构设计说明、基础布置图、柱平面施工图、楼层梁加固图、一层顶梁加固图、二层顶梁加固图、屋面梁加固图、一层屋面加固图、二层屋面加固图、屋面板加固图和楼梯详图;电气图:设计说明、配电系统图、图例材料清单、一层照明平面图、二层照明平面图、阁楼照明平面图、一层插座平面图、二层插座平面图、一层弱电平面图、二层弱电平面图、屋顶防雷平面图和基础接地平面图;用水计划:给排水设计说明、给排水系统平面图、一层给排水平面图、二层给排水平面图、阁楼给排水平面图、屋顶给排水平面图。第二段:带露台的两层小楼,面积115平方米。宽度:9.36米。深度:14.16米。覆盖面积:115.78平方米。建筑面积:203.84平方米。地面高度:从檐口到屋顶的距离为6.9米到8.982米。结构:砖混独立桩基主要造价:18万元
这是一个面积为115平方米的小型农村两层住宅的设计图,设计精巧。不同材质的文化石、仿砖墙和真石漆的结合,将整个别墅的优雅气质体现得淋漓尽致。颜色以暖色为主,两层纯白色的外墙给人一种清新、简单的视觉感受,看了永远不会厌倦。
门头采用欧式风格,增强了仪式感。二楼有一个露台,这不仅使房子的形状变得漂亮,还增加了家庭的户外活动空间。
从背面的外部效果图可以看出,背面采用了“L”型设计,大大提高了大深度住宅的采光和通风性能,并留下了后门,使日常生活更加方便。
建筑的平面图


室内建筑面积为115.78平方米,客厅宽敞、宽敞,接待更多的客人并不拥挤。餐厅与厨房相连,位置相对独立。厨房位于建筑的最北部,从而避免了油烟进入室内空间。一楼有两间卧室,在两间卧室的入口处对公众来说非常方便。
二楼平面图
室内建筑面积88.06平方米,二楼还设计了一个大客厅,作为家庭娱乐的空间。南北两侧各有一间卧室,东南侧设计了一个宽敞的露台,可用于晾晒和户外休闲。从平面图可以看出,中间走廊贯穿南北,非常有利于整个房子的通风性能,采光也很好。
图纸目录:


建筑图纸:建筑设计说明、建筑结构设计说明、一楼平面图、二楼平面图、顶层平面图、屋顶平面图、1-4轴立面图、4-1轴立面图、G-A轴立面图、A-G轴立面图、剖面图、楼梯详图、卫生间详图、门窗详图、节点详图和门详图
结构图:结构设计总说明(1234)、基础平面施工图、二层楼板调平方法施工图、二层楼板调平方法施工图、闷顶板调平方法施工图、顶板调平方法施工图、顶梁调平方法施工图、节点详图和楼梯详图;
给排水图纸:给排水设计说明(12)、单管一体化太阳能热水示意图、污水系统图、卫生间给排水详图、一层给排水平面图、二层给排水平面图、闷顶给排水平面图;
电气图:建筑电气设计说明和图例、配电系统图(12)、一层照明平面图、二层照明平面图、一层插座平面图、二层插座平面图、二层插座平面图、防雷平面图、接地平面图、一层电信平面图和二层电信平面图。以上两栋两层楼的总造价不超过20万元,在农村建房是可行的。尤其是对于普通家庭来说,不做那些华而不实的外表是没有实际意义的。今天我将在这里介绍你,希望能对你有所帮助。
转载请注明出自轩鼎别墅设计="://lemeizhai.com" target="_self">://www.lemeizhai.com