这座18×12.6米的="://lemeizhai.com" target="_self">中式庭院式乡村别墅掀起了一股复古热潮
在过去的两年里,许多人回到家乡建造新房子,聪明人的房子都建得很漂亮。也有一些业主建房子较早,谁暗暗后悔。为什么一开始他们没有想到建造别墅?导致现在看到别人的别墅满眼羡慕。中式别墅和欧式别墅在农村一直是平等的,而在中式别墅中,复古庭院别墅最为著名。
一栋中式庭院风格的农村两层别墅在村里掀起了一股复古热潮。
公寓类型基本信息



建筑位置:湖南启东
宽度:18米
深度:12.6米
占地面积:239.98平方米
建筑面积:411.73平方米
首层高度:4.0m
建筑高度:9.855米
结构类型:框架结构
主要费用参考:约46万
整体设计是复古风格的,主翼有两层。别墅外墙主要采用灰白色真石漆装饰,按1000毫米500毫米的比例横向纵向分缝,配以棕色蘑菇石、镂空雕花板护栏,斜屋顶铺灰色瓷砖。
渲染
2



与效果图1的不同之处在于坡屋顶装饰砖的色调,在这里选择蓝色所带来的视觉感受会有所不同。其他形状和装饰与效果图1相同。
计划


一楼布局描述:主房配有三室一厅两卫,主卧室配有私人浴室,东翼用作车库,西翼用作厨房和餐厅。
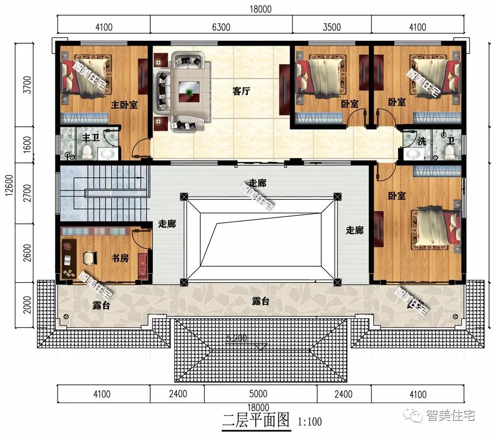
二层布局描述:主屋二层布局与一层相同,东翼为书房,西翼为备用客房,室外设置大阳台,便于晾晒和观赏。
庭院中间有一个庭院,可以与一些绿色景观和娱乐设施适当搭配。我梦想建造这样一座别墅。
转载请注明出自轩鼎别墅设计="://lemeizhai.com" target="_self">://www.lemeizhai.com