在农村地区,一栋="://lemeizhai.com" target="_self">普通类型的别墅最高可建15万元。你喜欢哪一个?(带施工图)
如今,越来越多的人在农村地区建房,边肖和他的朋友发现,以下三种类型的公寓建筑商占大多数。这三种户型的建筑风格基本相同,符合乡村风格。根据他们房子大小的不同,你喜欢哪一个?
益阳农民朋友第一家

该公寓建筑面积为280平方米,宅基地面积为15米* 12米。砖混结构,两层,坡屋顶,抗震设防烈度为7度,耐火等级为二级。一楼设有车库、两间卧室、厨房、浴室、客厅和餐厅。二楼有3间带阳台的卧室、1间活动室、1间自习室和2间浴室。这里有很多梯田,方便采光和晾晒,适合农民居住。费用大约是25万元。
2.邵阳农民朋友第二家

该公寓建筑面积186平方米,宅基地面积12米*9米。砖混结构,两层,坡屋顶。抗震设防烈度为7度,耐火等级为三级。一楼有一间老年室、厨房浴室、大客厅和餐厅。二楼有三个房间,一个书房和一个休息室。主卧室配有弧形凸窗。费用大约是20万元。
3.岳阳农民朋友第三家


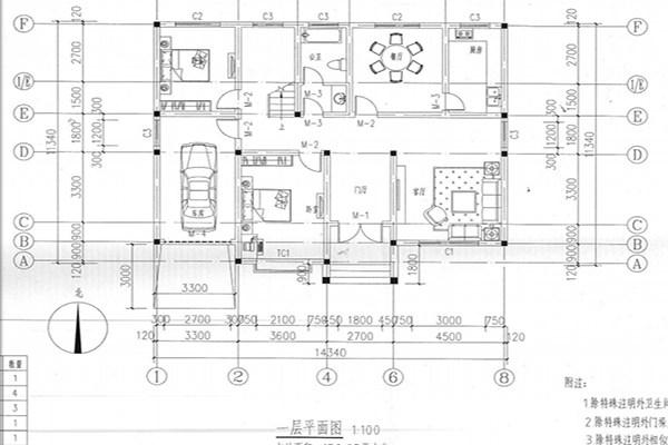
该公寓建筑面积160平方米,宅基地面积8米*12米。砖混结构,两层,坡屋顶。抗震设防烈度为7度,耐火等级为三级。一楼有一间老年室、厨房浴室、大客厅和餐厅。二楼有两间卧室、一间书房、一间储衣室和两个卫生间。主卧室配有卫生间。费用大约是15万元。
结论:以上三种单元经济实用,适合农村建房。根据不同的个人观点,这三个单位中你更喜欢哪一个?有一套完整的施工图纸。
转载请注明出自轩鼎别墅设计="://lemeizhai.com" target="_self">://www.lemeizhai.com